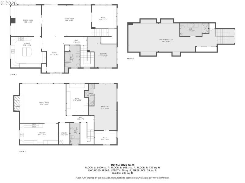
Welcome to your dream country retreat! This beautiful multilevel custom Craftsman home features 3,992 sq. ft. of exceptional living space. The home includes three spacious bedrooms and four well-appointed bathrooms, with a Cook's kitchen complete with a double oven, cooktop, pantry and an island with an eating bar, perfect for any chef. Main level offers brand new oak floors and fresh paint, a large living room with access to a private deck and is open to the dining room featuring built-in features with beautiful territorial views from the Marvin clad windows. Main level also features a generous bedroom with high ceilings and a full bath. Upstairs you will find a freshly painted primary suite with its own private balcony, built in features, and full bathroom featuring a walk-in shower. Downstairs makes for ideal multigenerational living or guest accommodations with bedroom suite, large laundry with built-in features, bathroom, family room featuring a woodstove, full kitchen and exterior access. Set on an expansive 20.5 acres, this retreat features a detached garage, circular driveway, large shop with office, workshop, built-ins, three bays and a full loft, barn with eight stalls and 30-ton hay storage for your equestrian needs, a loafing shed, and a second garage. Enjoy the fenced pastures, fruit trees, mature landscaping, pond, seasonal creek, abundance of wildlife and stunning territorial views, all while being just 15 minutes from historic downtown McMinnville. Seize this opportunity to make this unique country retreat your own!
HWY 99W, West on Baker Cr Rd, Right on NW High Heaven Rd to property on right
Dwelling Type: Residential
Subdivision: N/A
Year Built: 1980, County: US
HWY 99W, West on Baker Cr Rd, Right on NW High Heaven Rd to property on right
Listing is courtesy of Baker Street Real Estate, LLC
Sign in to your account to continue