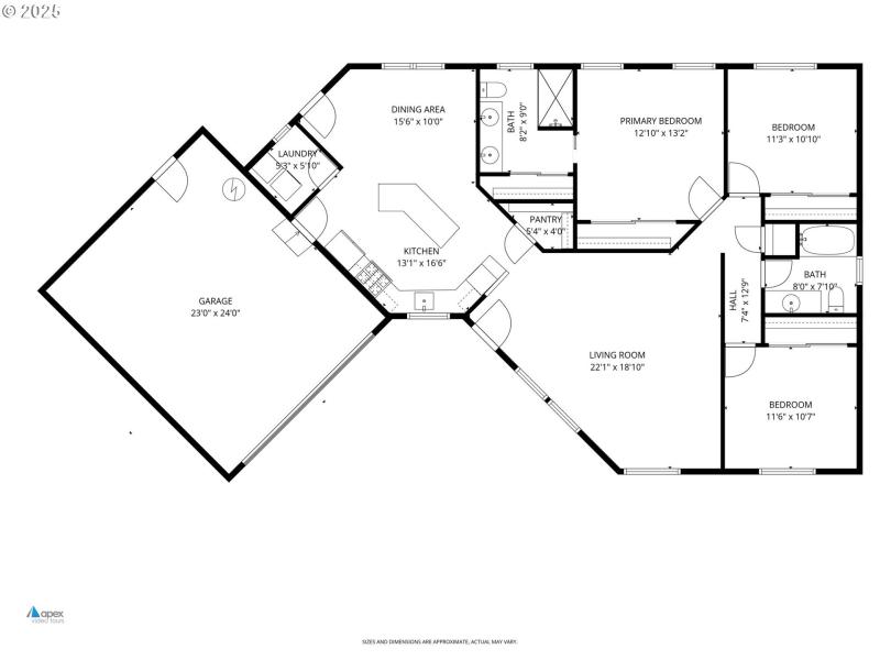
Come home to your private oasis! Relax under your large gazebo with backyard views, great for BBQs and entertaining. This custom-built home has been recently upgraded, both interior and exterior. Added pavement to the front driveway provides plenty of parking. Completely remodeled backyard w/new terraced concrete for low-maintenance care, enjoy your garden w/raised beds, and a newer fence. Bright remodeled kitchen with a large island, beautiful granite counters, and all newer appliances. Nice, open floor plan with newer hardwood floors, carpet, and vinyl. The living room has vaulted ceilings. Newer windows have marbled sills. Each room has high ceilings with fans. Master bedroom has his and hers closets, a remodeled ensuite bathroom, w/granite countered, dual vanities, and a big marbled step-in shower. The guest bathroom has a newer vanity and granite counters. The laundry room features a newer washer and dryer. Outdoor furniture included. Attic fan is solar-powered. Move-in ready! PLEASE No drive-bys.
Crystal Drive between Sienna Hills Dr and Phyllis Dr
Dwelling Type: Residential
Subdivision: N/A
Year Built: 2004, County: US
Crystal Drive between Sienna Hills Dr and Phyllis Dr
Listing is courtesy of Windermere Van Vleet & Associates