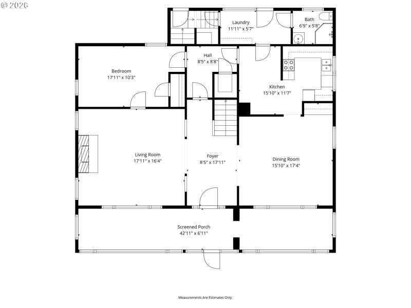
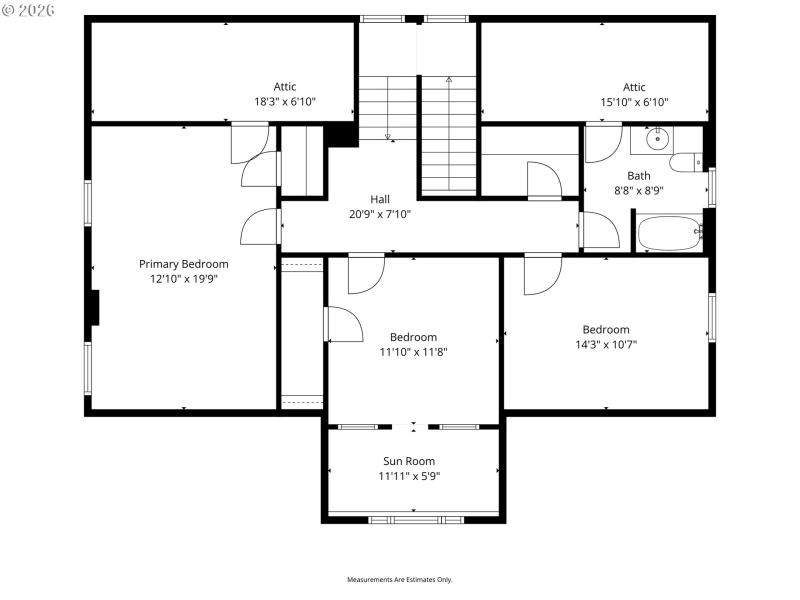
Calling all small business owners, contractors, entrepreneurs, and developers. This rare light industrial property offers the ultimate live/work opportunity on 1.47 flat, usable acres.Zoned Light Industrial, the property supports a wide range of commercial uses, making it ideal for trades, service businesses, light manufacturing, storage, redevelopment, or future expansion. The existing Two-Story w/full basement farmhouse provides immediate residential or office space, allowing you to operate your business on-site while building equity. Inside, you’ll find classic wood trim, custom built-ins, and updated plumbing and electrical systems. The basement features a separate entrance, offering excellent potential for additional office space, rental income, or expanded work areas.Outside, the fully-fenced rear acre of the lot is well-suited for equipment storage, fleet parking, materials staging, or secure yard space. Two entrances and ample room for large vehicle capacity or potential parking areas. The 568 square foot outbuilding is insulated and has electricity, providing another potential workspace or storage area.Strategically and centrally located with convenient access to major routes and surrounding businesses.Opportunities like this—combining residential comfort, commercial zoning, usable land, and expansion potential—are increasingly hard to find.Buyer to perform due diligence regarding square footage, zoning uses, and development potential.
padden pkwy, NE 94th ave, 105th st, 87th ave
Dwelling Type: CommercialSale
Subdivision: N/A
Year Built: 1915, County: US
padden pkwy, NE 94th ave, 105th st, 87th ave
Listing is courtesy of John L. Scott Real Estate
Sign in to your account to continue