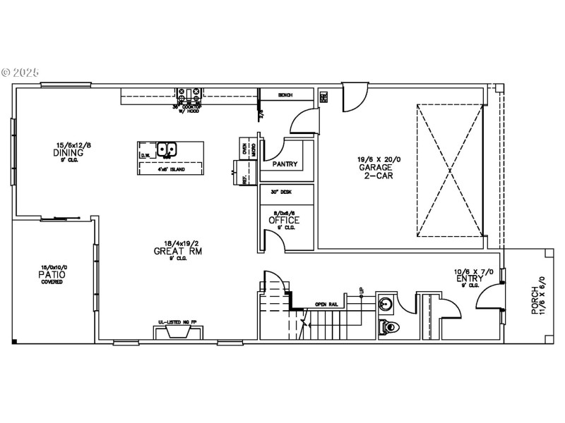
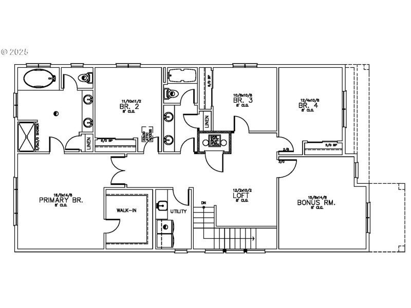
Builders Promotion on this home. See associate for details:Discover this beautiful 4-bedroom, 2.5-bath new construction home in the desirable Frog Pond Overlook community of Wilsonville, OR. Offering serene greenspace views and proximity to scenic walking paths, this home combines modern comfort with natural beauty.Step inside to a functional layout featuring a convenient pocket office on the main floor, perfect for remote work or organization. The gourmet kitchen shines with Whirlpool appliances, including a powerful Zephyr chimney hood and a 36" gas cooktop, ideal for culinary enthusiasts. The open-concept living and dining areas create a welcoming space for gatherings.Upstairs, the spacious primary suite includes a well-appointed ensuite and ample closet space. Three additional bedrooms provide versatility, while the loft and bonus room offer flexible spaces for a home theater, playroom, or gym.The attached 2-car garage adds convenience, and the fully landscaped, fenced yard enhances outdoor living with stunning greenspace views. Located in Frog Pond Overlook, enjoy top-rated schools, parks, and community amenities just steps from tranquil trails.Move-in ready and thoughtfully designed, this Wilsonville gem is perfect for modern living. Schedule a tour today!
SW Stafford Road x SW Frog Pond Lane x SW Windflower St
Dwelling Type: Residential
Subdivision: Frog pond overlook
Year Built: 2025, County: US
SW Stafford Road x SW Frog Pond Lane x SW Windflower St
Listing is courtesy of Stone Bridge Realty, Inc