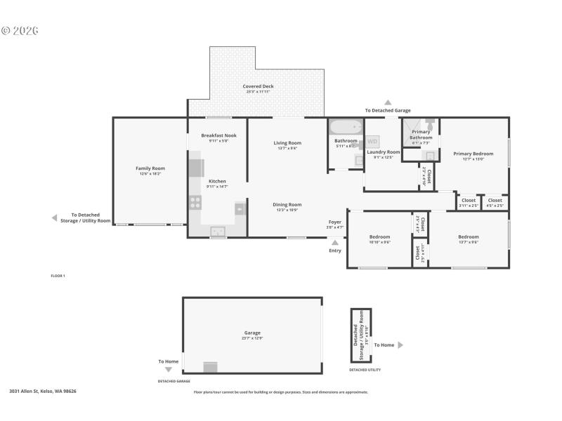
Charming Country Retreat on 1.5 Acres – Move-In Ready!Enjoy the space, comfort, and peaceful setting this beautifully maintained 3-bedroom, 2-bath home has to offer. With 1,528 sq. ft. of thoughtfully updated living space, this home blends classic charm with modern touches for easy everyday living. Recent updates—including newer laminate flooring, fresh interior paint, updated fixtures, ceiling fans, wall heaters, and a newer roof—create a bright, welcoming atmosphere and provide confidence for the next owner. Large windows bring in natural light and frame views of the surrounding property, enhancing the home’s warm and inviting feel.A versatile bonus room offers additional flexibility and could easily serve as a fourth bedroom, home office, hobby space, or guest room depending on your needs.Situated on a generous 1.5-acre corner lot, the outdoor space is just as appealing as the home itself. A charming white fence, mature trees, and expansive open areas offer endless possibilities—from gardening and outdoor entertaining to simply enjoying the peaceful surroundings and extra breathing room.The oversized detached garage/shop adds exceptional versatility, providing ample space for vehicles, storage, hobbies, or projects. With plenty of room to spread out both inside and out, this property offers flexibility to fit a wide range of uses.If you’ve been looking for a move-in-ready home that offers space, privacy, and a relaxed setting while still being conveniently located near Kelso amenities, this property is a must-see. Come experience the comfort and charm for yourself.
I-5 Exit 39, East on Allen to house on left
Dwelling Type: Residential
Subdivision: East Kelso
Year Built: 1948, County: US
I-5 Exit 39, East on Allen to house on left
Listing is courtesy of Redfin
Sign in to your account to continue