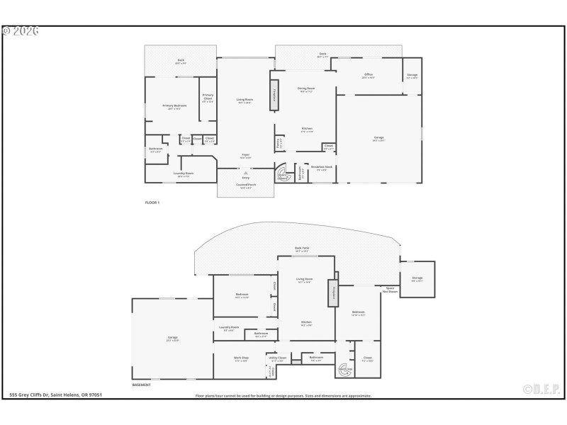
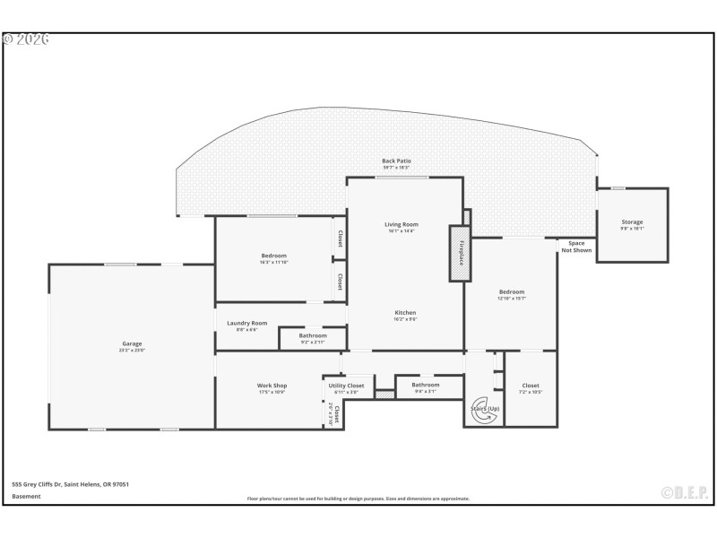
Spectacular Columbia Riverfront living defines this exceptional property. Set on approximately one acre with direct river frontage, this 3,300-square-foot residence offers breathtaking, ever-changing views of the Columbia River, passing ships, vibrant sunsets, and abundant wildlife. A private dock provides effortless access for boating, fishing, and waterfront recreation, creating a true Pacific Northwest lifestyle. The home features 3 bedrooms and 3.5 bathrooms with a flexible layout designed for comfort and versatility. Multiple living areas are filled with natural light and oriented to capture panoramic river views. A kitchenette enhances functionality and opens possibilities for multigenerational living, guest accommodations, or potential short-term rental use. Thoughtful separation of spaces allows for privacy while maintaining a cohesive flow throughout the home. Enjoy peaceful riverfront living just minutes from downtown St. Helens, offering convenient access to shopping, dining, schools, and commuter routes to Portland. Whether entertaining on the river-view deck, launching from your private dock, or simply enjoying the tranquility of the waterfront setting, this property delivers a rare opportunity to own a premier Columbia Riverfront home.
Hwy 30 to Deer Island Rd, L West, L 2nd, R Lemont, follow to Grey Cliffs
Dwelling Type: Residential
Subdivision: N/A
Year Built: 1980, County: US
Hwy 30 to Deer Island Rd, L West, L 2nd, R Lemont, follow to Grey Cliffs
Listing is courtesy of RE/MAX Powerpros
Sign in to your account to continue