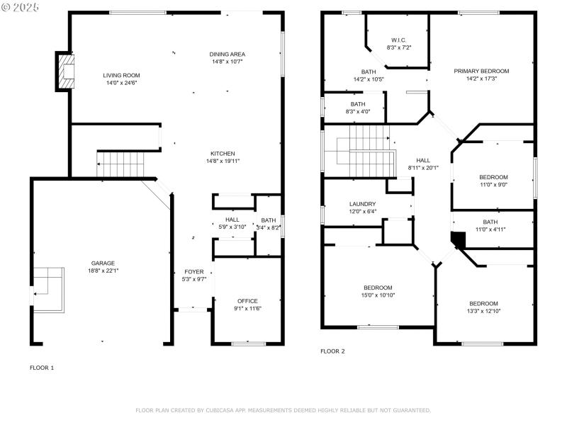
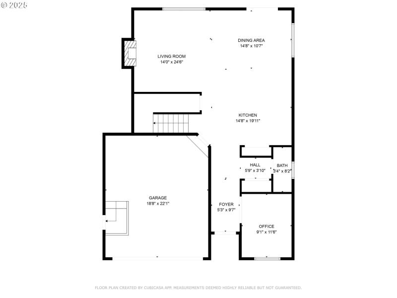
Preferred lender is offering a no-cost rate buy down or closing cost contribution - ask for more details. Built in 2015 and Energy Star Certified, this home blends efficiency with style and the bonus of no HOA. The flexible floor plan offers 4 bedrooms, 2.5 bathrooms, and a main-level office/den/5th bedroom, all designed to capture natural light. The kitchen is a standout with granite counters, stainless steel appliances, extra large pantry, and an oversized island perfect for gathering. Upstairs, the primary suite delivers space and comfort with a large walk-in closet, dual vanities, and a walk-in shower. Outdoors, enjoy a low-maintenance lifestyle with a fully fenced yard, covered patio, firepit, and irrigation in both front and back. Fresh interior paint, classic wainscoting, tankless water heater, and an oversized two-car garage add polish and practicality—plus small RV or trailer parking. Conveniently located minutes from parks, shopping, Clackamas Community College, and historic downtown Oregon City.
Leland Rd to Lindsay Anne Lane
Dwelling Type: Residential
Subdivision: N/A
Year Built: 2015, County: US
Leland Rd to Lindsay Anne Lane
Listing is courtesy of Move Real Estate Inc