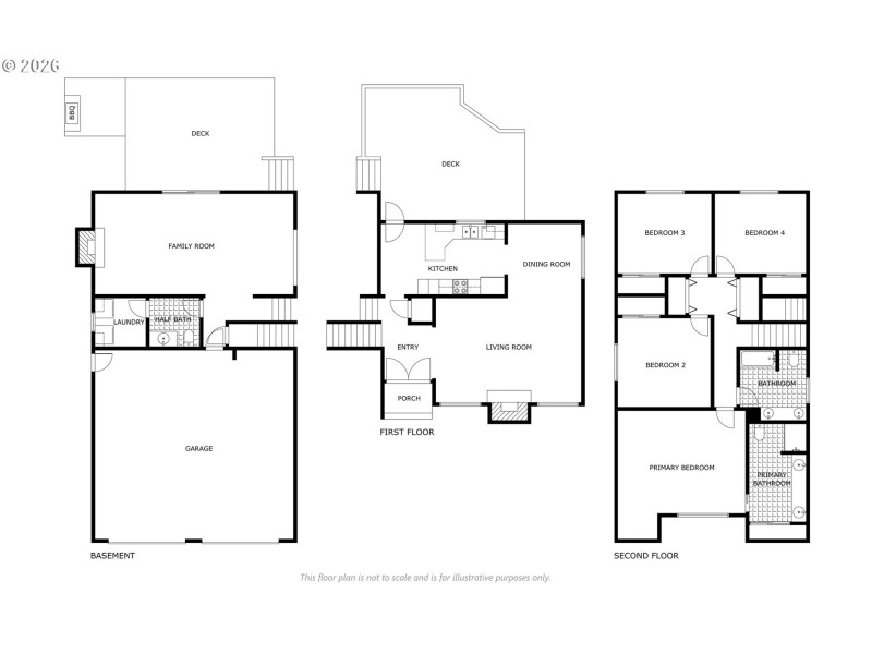
Horse Property- Close in TOWN- 5 Private, Usable Acres | Covered Arena | Dual Barn Setup• 5 flat, fully usable acres• Covered, lighted arena (approx. 50x72) with direct barn access• Main barn: Three 12x12 rubber-matted stalls, tack room, hay + tractor storage, Eco Green Grid footing• Second barn (24x36): Three additional stalls,(12x36) hayloft, power, ag flooring• Cross-fenced pasture for multiple paddocksAdditional Property Features:• Fenced garden space + greenhouse + raised beds• Orchard: Asian pear, apple, plum, berries, grapes• Chicken coop• Open lawn + mature trees• RV parking (approx. 28–30 ft covered)• Parking for anything and everything!Home – 2,182 SF | 4 Bed | 3.5 Bath• Vaulted ceilings + wood-burning fireplace• Large windows with pasture views• Kitchen with heated tile floors, granite counters, induction cooktop, convection oven (air fryer capable), stainless appliances• Lower level flex space with pellet stove + exterior access• Covered deck with ceiling fan + additional patio spacePrivate setting with established infrastructure for horses, hobby farming, or multi-use living.
E Main street, it wil turn into NE 219th, follow past NE 182 on right side
Dwelling Type: Residential
Subdivision: N/A
Year Built: 1979, County: US
E Main street, it wil turn into NE 219th, follow past NE 182 on right side
Listing is courtesy of Keller Williams Realty
Sign in to your account to continue