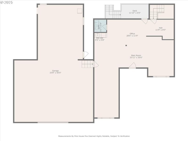
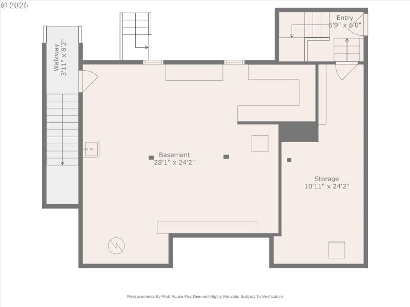
We are excited to present 4726 SE Milwaukie Ave, a meticulously remodeled commercial property in inner SE Portland, ideally located near I-5, 99E, Powell, and other main corridors. Over the past 24 months, nearly every surface has been upgraded. Exterior improvements include a 50-year Presidential roof on the main building, a 50-year membrane roof on the warehouse, high-end double-pane windows, fiber cement siding with T&G cedar accents, soffits, gutters, LED lighting, and updated doors, including a warehouse roll-up. Additional enhancements include a permitted rear deck, a new main water line, and a new AC unit.Inside, the main level features engineered hardwood floors, new doors & trim, LED lighting, high-end plumbing fixtures, a kitchenette with custom cabinetry, sink, mini fridge, shelving, and a half bath. The warehouse is highly functional, with 14’ ceilings, a 10’x10’ automated roll-up door, and space for shelving or build-out to suit your business. A lower level accessible via interior stairs or exterior security door provides storage and additional office space with a partition wall.Situated on nearly one-third of an acre, the property offers ample parking, equipment storage, and trailer space, with potential to expand usable square footage. Its location in a thriving commercial-residential corridor near Sellwood-Moreland and Brooklyn provides restaurants, cafés, shops, services, public transit access, green spaces, and a strong customer base.This listing is for the building only. The business is not included, and the buyer must sign an agreement prohibiting another flooring company from operating on-site for 36 months. With recent upgrades, flexible layout, and prime location, 4726 SE Milwaukie Ave is a highly attractive option for a wide variety of business uses.
SE Holgate to Milwaukie Ave
Dwelling Type: CommercialSale
Subdivision: N/A
Year Built: 1961, County: US
SE Holgate to Milwaukie Ave
Listing is courtesy of eXp Realty, LLC