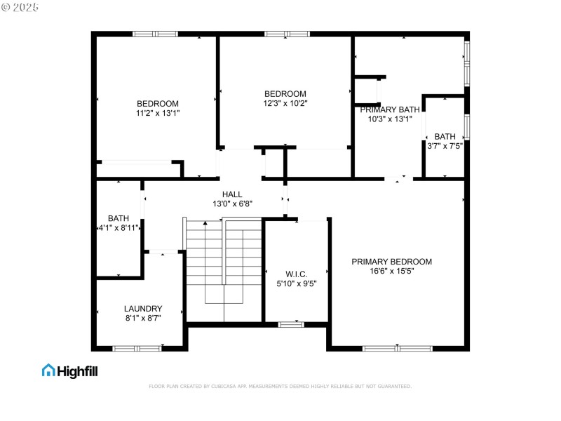
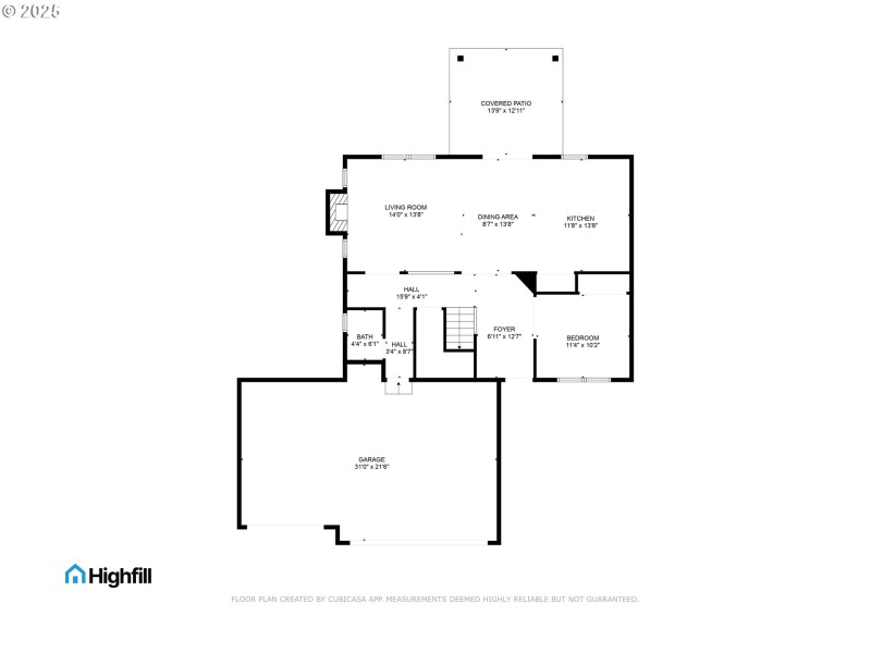
This craftsman home was built in 2021 on a large corner lot. The home had numerous upgrades and a three car garage. This model, the Stoneridge, offers a first floor that is open from the living room, dining room and into the kitchen where there is a grand island and abundant cabinetry and storage. Upstairs, the expansive primary suite features an oversized closet plus a deluxe ensuite bath, including a soaking tub and dual vanity. The second floor also offers two more large bedrooms, a full bathroom and the conveniently located laundry room. Don't miss this exceptional home. View the video and then schedule your private tour today.
Irvington to Korbel then right on Lorian
Dwelling Type: Residential
Subdivision: N/A
Year Built: 2021, County: US
Irvington to Korbel then right on Lorian
Listing is courtesy of ICON Real Estate Group