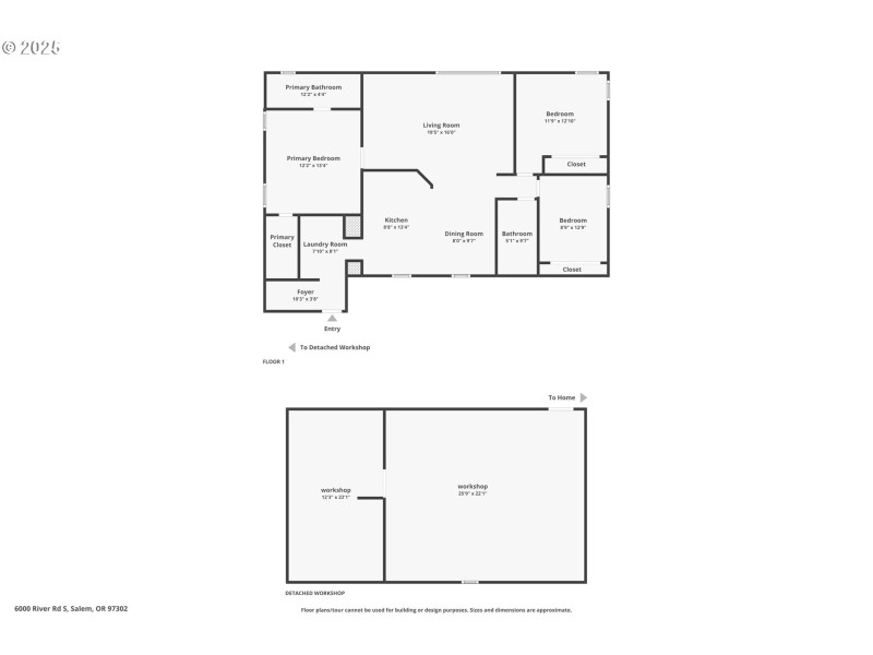
Escape to your own 26-acre haven where peace, privacy, and possibility come together. Wake up to birdsong, sunlight over open meadows, and the gentle sound of your private creek. This remarkable property offers everything you need to live your homestead dream or create the rural retreat you’ve always imagined.Perfectly located for convenience, you’re just 7 minutes from Independence, 15 minutes from Monmouth, and 20 minutes from Dallas. For students or commuters, Albany is only 35 minutes away and Corvallis just 45 minutes—offering access to schools, colleges, and amenities while still enjoying true privacy and a forested, compound-like setting close to everything.The land is full of character—rolling, green, and rich with valuable timber. There’s ample space for horses, livestock, gardens, or simply room to explore. Ride your own trails through the trees, or spend the day in the impressive oversized shop, ideal for equipment, projects, or hobbies. A reliable well and septic system are already in place, giving you a strong foundation to build on.The existing farmhouse is comfortable and move-in ready, perfect as a full-time residence, weekend escape, or a landing spot while you design and build your dream home. Whether you’re seeking simplicity, a second home in nature, or an investment with long-term potential, this property offers flexibility and freedom.Special agricultural zoning keeps property taxes refreshingly low while supporting a wide range of uses—from cultivating and raising animals to simply enjoying the quiet beauty of rural life.Every acre here tells a story of fresh air, open space, and the joy of living close to the land. Opportunities like this are rare. Come walk the trails, listen to the creek, and imagine your future here. Your homestead dream starts the moment you arrive—schedule your private showing today.
S on River Rd. Left on Private drive - Green house with decor flags near entrance to private drive.
Dwelling Type: Residential
Subdivision: N/A
Year Built: 1994, County: US
S on River Rd. Left on Private drive - Green house with decor flags near entrance to private drive.
Listing is courtesy of HomeSmart Realty Group
Sign in to your account to continue