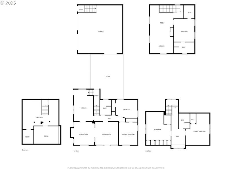
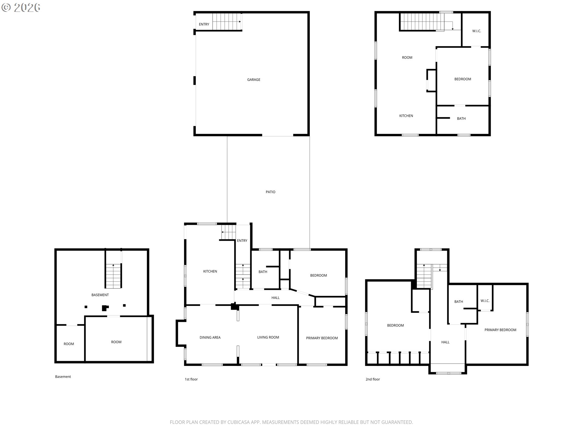
Brooklyn beauty that truly has you at hello, set on a corner lot with a welcoming front porch and that classic SE Portland feel in one of the city’s most central locations. Inside, there isn’t a surface that hasn’t been touched. This home has been extensively remodeled with a level of craftsmanship you can feel, thanks to a longtime carpenter owner, especially in the kitchen where custom all-wood cabinetry, soft-close hinges, full-extension drawers, and thoughtful built-ins for everything from recycling to small appliances make everyday living incredibly functional. The kitchen and main bath were fully remodeled, and major system updates include electrical and plumbing upgrades, a tankless water heater, serviced HVAC, and newer stainless steel appliances including a recently updated refrigerator. Both sides of the roof have been replaced, offering added peace of mind, and the home blends its 1914 character with modern updates seamlessly, from crown molding and built-ins to dimmable lighting and smart storage throughout. Upstairs features new carpet and added built-in storage, while the main living spaces offer warmth and flexibility with timeless details. Outside, the backyard is dialed with hardscaping, pavers, raised garden beds, drip irrigation, and established plantings, creating a private and usable outdoor space. A standout feature is the detached two-car garage built in 2021 with a one-bedroom ADU above, offering flexibility for rental income, guests, or a work-from-home setup, complete with its own kitchen, full bath, walk-in closet, laundry, and strong rental history. All of this just moments from neighborhood coffee shops, restaurants, parks, and great schools including Winterhaven School, plus local favorites like the Aladdin Theater.
SE Milwaukie Ave to SE Rhone and then SE 14th
Dwelling Type: Residential
Subdivision: BROOKLYN NEIGHBORHOOD
Year Built: 1914, County: US
SE Milwaukie Ave to SE Rhone and then SE 14th
Listing is courtesy of eXp Realty, LLC
Sign in to your account to continue