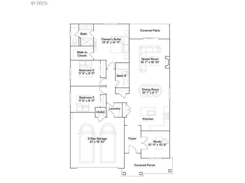
This new construction home is located in Henshaw Farm, with convenient access to Simpson Park, Linn-Benton Community College, downtown historic Albany, and the Golf Club of Oregon, all within a short drive. The Trenton plan is a single-story design with a split layout that places the open kitchen, dining room, and great room together, extending to a back patio for outdoor living. The spacious primary suite offers a private retreat with a primary bath featuring a double vanity and walk-in shower, while two additional bedrooms are positioned nearby. A study near the foyer adds flexibility for an office or hobby room. Interior highlights include quartz countertops, shaker-style cabinets, LVP flooring in the kitchen and entry, LVT in baths, two-tone paint with painted trim, a fireplace with floating mantle, landscaping, and fencing. This home also includes central air conditioning, a refrigerator, washer and dryer, and blinds—all at no extra cost! Located on homesite 145, this home is expected to be complete in February 2026. Rendering is artist conception only. Photos are of a similar home, features and finishes will vary.
Columbus St. to Seven Mile Ln.
Dwelling Type: Residential
Subdivision: HENSHAW FARM
Year Built: 2026, County: US
Columbus St. to Seven Mile Ln.
Listing is courtesy of Lennar Sales Corp