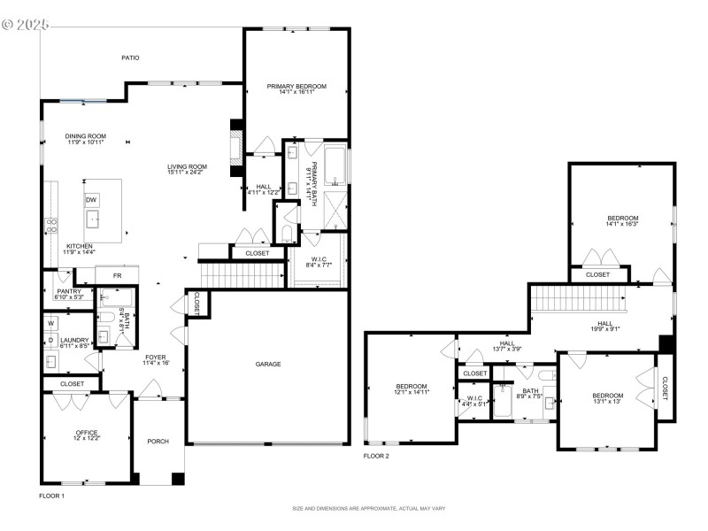
OFFERING TOWARDS RATE BUY DOWN AND/OR CLOSING COSTS! Welcome to this exquisitely built new construction home! Designed for luxury and functionality, the versatile layout is perfect for various living styles. Striking, bold finishes, soaring ceilings, and premium fixtures enhance the grandeur spaces, while the chef’s kitchen features an oversized waterfall island, a hidden walk-in pantry, custom built-ins, and premium upgrades throughout. Abundant natural light fills the home, especially in the main level primary suite, which offers a spa-like retreat. Main level guest bedroom or office, and additional upstairs bedrooms offer convenience for multi generational options. Outdoor living is just as impressive with a large covered patio, perfect for year-round enjoyment. Conveniently located minutes from major freeways, shopping, dining, and the Vancouver Waterfront, this home is a must-see! GPS ADDRESS:1300 SE ELLSWORTH RD
GPS directions - Go to: 1300 SE Ellsworth Rd Vancouver, WA 98664
Dwelling Type: Residential
Subdivision: N/A
Year Built: 2024, County: US
GPS directions - Go to: 1300 SE Ellsworth Rd Vancouver, WA 98664
Listing is courtesy of Real Broker LLC
Sign in to your account to continue