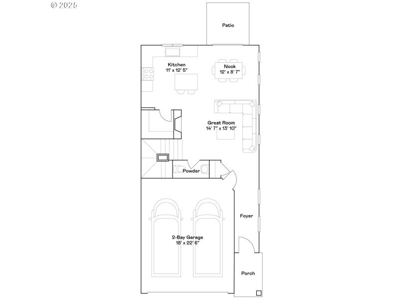
This new construction home is located in Henshaw Farm near everyday conveniences and local recreation. The Blairmont plan features a contemporary two-story design with an open-concept main floor that connects the kitchen, dining, and great room to the rear patio, while the second floor offers a laundry room, two secondary bedrooms, and a primary suite with a walk-in closet and a private bath featuring a double vanity and a separate tub and shower. Interior highlights include quartz countertops, shaker-style cabinets, LVP flooring in the kitchen and entry, LVT flooring in the baths, two-tone interior paint on walls and trim, a fireplace with floating mantle, along with landscaping and fencing. This home also includes central air conditioning, a refrigerator, washer and dryer, and blinds—all at no extra cost! Located on homesite 137, this home is expected to be complete in January 2026. Rendering is artist conception only. Photos are of a similar home, features and finishes will vary.
Columbus St. to Seven Mile Ln.,
Dwelling Type: Residential
Subdivision: HENSHAW FARM
Year Built: 2026, County: US
Columbus St. to Seven Mile Ln.,
Listing is courtesy of Lennar Sales Corp