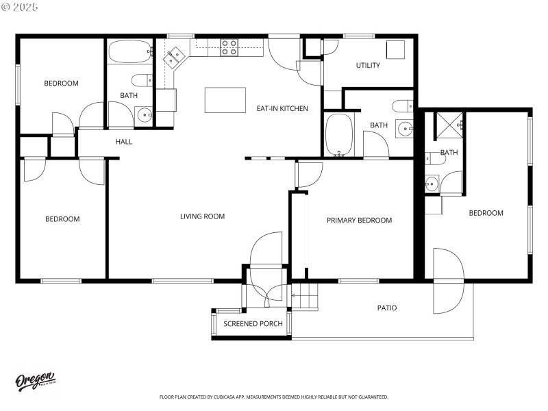
This charming Milwaukie ranch is a bright and inviting 3-bedroom, 2-bath home that blends comfort and flexibility. Inside, you’ll find a thoughtfully updated floor plan filled with natural light, creating a warm and welcoming atmosphere throughout. The bonus, finished garage space, complete with a 3rd full bathroom, offers incredible versatility—perfect as a separate guest suite, home office, or the foundation for a potential ADU/ MIL suite. Outdoors, the private yard features a dedicated playground- a wonderful space for play and relaxation, as well as a dog run and catio, while the recently re-painted exterior and new carport, ensure curb appeal and convenience. Other recent updates within the last 3 years include the roof with added skylight, hvac system, and water heater. Located just minutes from the MAX station, shopping, restaurants, and everyday conveniences, this home provides the perfect balance of function and lifestyle.
SE McLoughlin Blvd, to SE Park Ave, to SE 26th Ave
Dwelling Type: Residential
Subdivision: N/A
Year Built: 2002, County: US
SE McLoughlin Blvd, to SE Park Ave, to SE 26th Ave
Listing is courtesy of Move Real Estate Inc