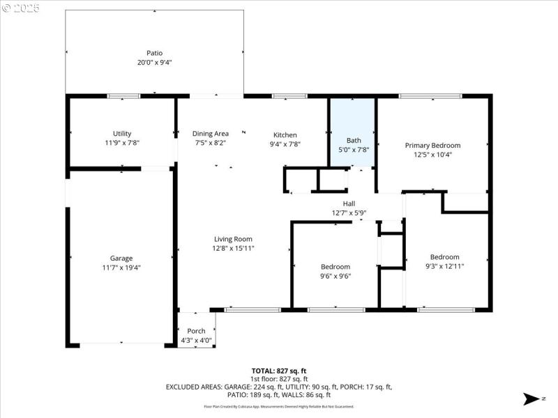
Fully rebuilt from the studs out in 2022, this move-in-ready one-level home delivers modern comfort in a friendly, quiet neighborhood. Enjoy an open floor plan, 3 bedrooms, 1 bath, dedicated laundry room, newer AC, custom blinds, and a brand-new waterline from street to house. The flat, .15-acre lot with fully fenced backyard is perfect for play, pets, or future garden plans. Just minutes to Fred Meyer, parks, transit, and everyday conveniences. Fresh, clean, and beautifully updated—an ideal first home or investment opportunity! See updates list!
Division, north on 148th, west on Caruthers St, north on 147th Ave.
Dwelling Type: Residential
Subdivision: N/A
Year Built: 1955, County: US
Division, north on 148th, west on Caruthers St, north on 147th Ave.
Listing is courtesy of Coldwell Banker Bain