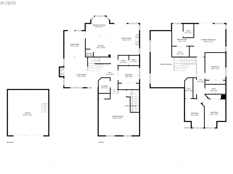
Welcome to refined living in the Bull Mountain area, where space, flexibility, and timeless design come together in a highly desirable location.Tucked into a quiet setting, this beautifully maintained home offers over 3,000 square feet of versatile living space. From the moment you enter, you’re greeted by soaring ceilings, abundant natural light, and an effortless flow between formal and informal areas.The main level is both functional and inviting, featuring a spacious kitchen that opens seamlessly to the family room. Generous living and dining areas offer flexibility for a variety of uses, including gatherings, workspace, or extended living arrangements, with a full bedroom and bath on the main level for added convenience. A standout feature of the home is the expansive 22x24 bonus room on the main level, an uncommon offering with endless possibilities. Whether used as a media room, fitness space, office, or additional living area, this space enhances the home’s versatility. Upstairs, the expansive primary suite offers a well-appointed retreat with an ensuite bath and ample closet space. Additional bedrooms are well-sized and thoughtfully positioned. Step outside to a private backyard with space to relax, entertain, or take in the surrounding scenery. Conveniently located near parks, shopping, dining, and major commuter routes, with access to a variety of local schools. A rare opportunity to own a spacious, move-in-ready home with exceptional flexibility in the Bull Mountain area.
PACIFIC HWY TO BEEF BEND, TURN RIGHT ON SW 122 THAN LEFT ON TURNAGAIN
Dwelling Type: Residential
Subdivision: Turnagain Heights
Year Built: 2001, County: US
PACIFIC HWY TO BEEF BEND, TURN RIGHT ON SW 122 THAN LEFT ON TURNAGAIN
Listing is courtesy of Coldwell Banker Professional
Sign in to your account to continue