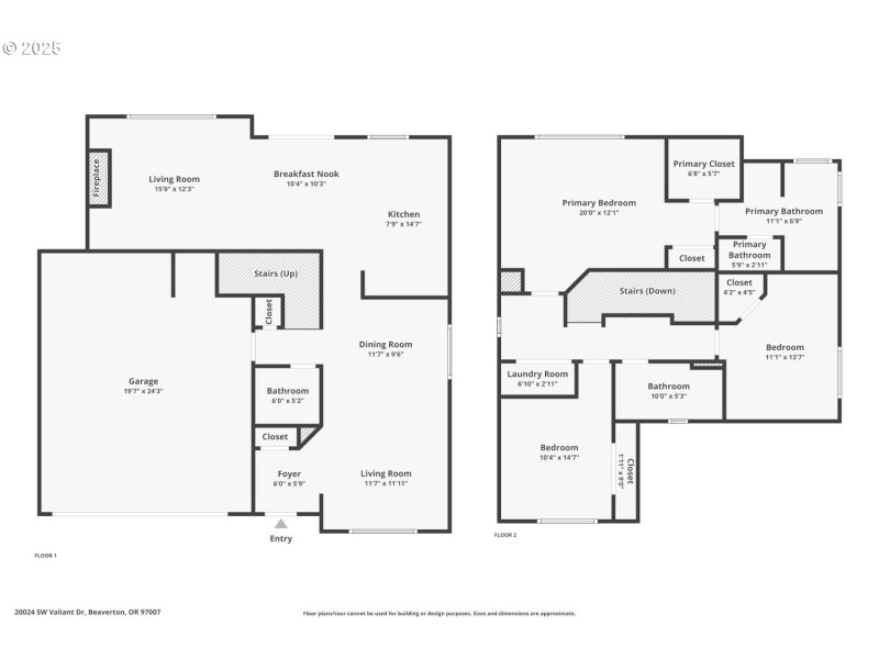
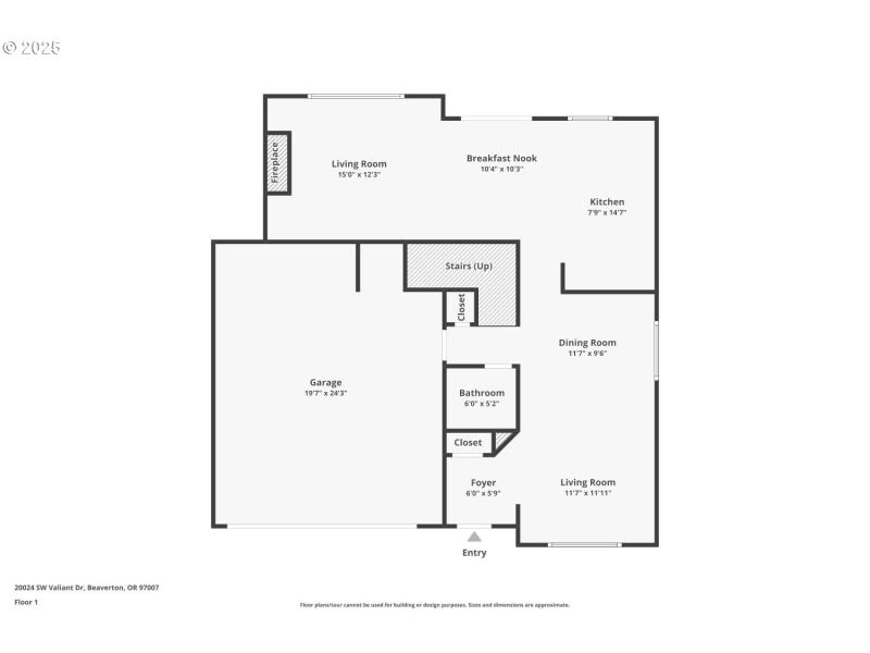
Priced to sell! Located in the sought after Cooper Mountain, surrounded by nature, blocks away from Jenkins State Park and Cooper Mountain Vineyards, this home was carefully maintained with an updated kitchen, floors and paint! Intimate and cozy backyard with Trex deck for entertainment, fully fenced, on a large corner lot. Fast commute to Intel and Nike and shopping centers. The home features gourmet kitchen, with island, stainless steel appliances, formal dining and living room with gas fireplace, and high ceilings.The large and bright master suite offers his and hers walking in closet, dual vanity, and a soaking tub to relax in after a long work day. The HOA gives homeowners a nice brake by maintaining the front yard! The sellers have an assumable VA loan at 2.75% interest rate that will be sad to loose, but they need a larger home to grow their family! A must see!!
from 185th, onto Gassner Rd, on 200th, R on Squire, L on Valiant
Dwelling Type: Residential
Subdivision: N/A
Year Built: 2009, County: US
from 185th, onto Gassner Rd, on 200th, R on Squire, L on Valiant
Listing is courtesy of MORE Realty