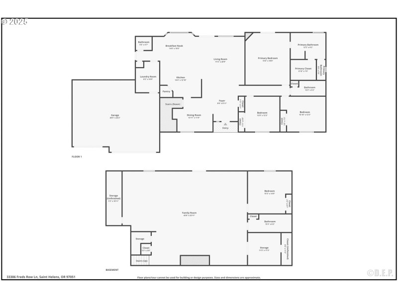
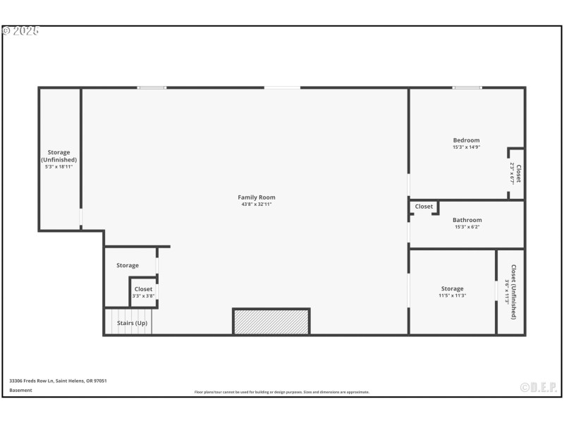
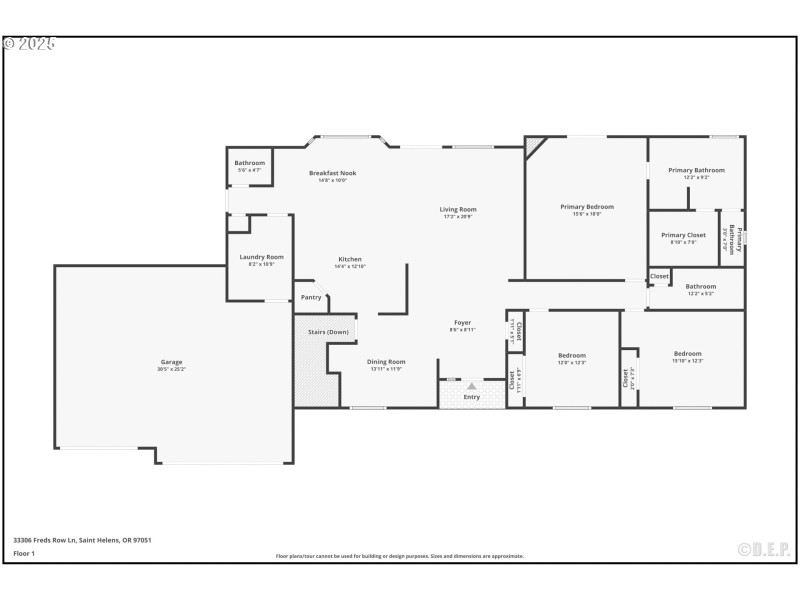
Welcome home to your 4,354 sq ft home in the heart of Yankton that perfectly blends comfort, functionality, and style. This spacious 4-bedroom, 3-bath residence features an inviting open-concept design with vaulted ceilings and abundant natural light. The chef’s kitchen boasts granite countertops, stainless steel appliances, and a pantry, flowing seamlessly into the great room for effortless entertaining. The large main level primary suite offers an en-suite bath and walk-in closet and doors out to the deck. Relax and enjoy your morning coffee/tea with views of the hillside, wildlife and mountains. All this while the fully finished basement provides a cozy woodstove, an additional huge family room and tons of storage space. Enjoy movie nights or gatherings here. You can also step outside to backyard with a fantastic covered patio ideal for year-round enjoyment. Don't miss the fully fenced garden space filled with blueberries plus the apple trees on the property. With a 3-car garage, smart home features, and energy-efficient upgrades throughout, this home is as practical as it is beautiful. If you are looking for shop space, there are plenty of options for that as well. All of this wrapped up on 2.94 acres ideally located making this the perfect place to call home.
Hwy 30 to Pittsburg Rd, R on Freds Row, stay to right to end
Dwelling Type: Residential
Subdivision: N/A
Year Built: 2013, County: US
Hwy 30 to Pittsburg Rd, R on Freds Row, stay to right to end
Listing is courtesy of RE/MAX Powerpros