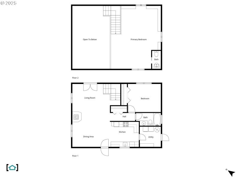
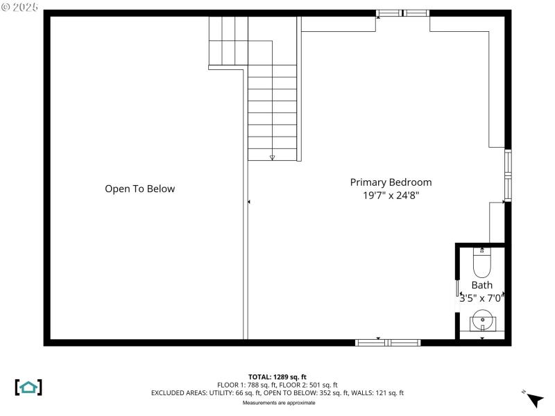
Perched on 10 private acres above Hood River, 2300 Elder Road is an authentic 1985 log cabin built with imported Montana fir logs, meticulously maintained and upgraded since the current owner purchased it in 1999. This 1,404 sq ft home features 2 bedrooms and 1.5 baths, including a 468 sq ft upstairs loft with half bath, custom floor-to-ceiling library, and rolling ladder — the perfect quiet space for the avid reader. Expansive panoramic views of the Hood River Valley create a breathtaking backdrop, while a cozy woodstove and wraparound deck enhance the cabin’s warmth and charm. Since ownership, consistent maintenance and thoughtful updates have been made, including exterior logs professionally treated in 2024, a metal roof installed in 2001, solid copper gutters (2015), updated windows and door (2014), all-original red oak flooring, solar panels installed in 2023 in collaboration with Hood River Electric, EV charging station added in 2022, and updated appliances. A new well pump and pipes were replaced in 2016. Outdoor features include two spacious sheds for firewood and extra storage, an outdoor shower, and a rustic wood-burning hot tub offering sweeping valley views that highlight the cabin’s classic Northwest charm.All furnishings, custom-created specifically for this cabin, are negotiable. With county-maintained road access, proximity to town, nearby hiking and mountain biking trails, and fire-protection-minded groundskeeping, this property offers a rare combination of privacy, natural beauty, and turnkey Northwest living.
OR-35 S to Whiskey Crk.Take Old Dalles Dr to Elder Rd. Approx 4.3 mi to prop from Old Dalles Rd
Dwelling Type: Residential
Subdivision: N/A
Year Built: 1985, County: US
OR-35 S to Whiskey Crk.Take Old Dalles Dr to Elder Rd. Approx 4.3 mi to prop from Old Dalles Rd
Listing is courtesy of Don Nunamaker