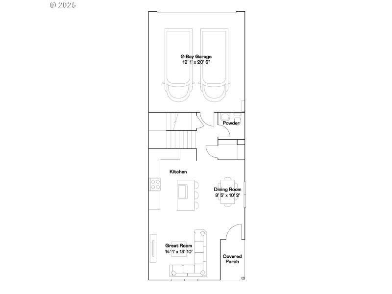
Welcome to Smith Creek by Lennar in Woodburn. The new-construction Whitney plan offers a spacious two-story layout with an open-concept main floor that connects the kitchen, dining area, and great room for comfortable everyday living. Upstairs, three bedrooms and a versatile loft provide flexible space for work or play, including a generous primary suite with an en-suite bathroom featuring a double vanity and walk-in closet. Interior finishes feature quartz countertops, Shaker-style cabinetry, stainless steel appliances, LVP (luxury vinyl plank) flooring in the kitchen and entry way, LVT (luxury vinyl tile) flooring in bathrooms, and two-tone interior paint. This home also includes fencing and landscaping, plus central air conditioning, a refrigerator, washer and dryer, and blinds—all at no extra cost! Smith Creek offers a welcoming community with onsite amenities such as a dog park, playground, picnic areas, trails, and a basketball court. Located just 7 minutes from Woodburn Premium Outlets and close to parks, golf courses, schools, and vineyards, the neighborhood provides easy access to highways for convenient commuting. Rendering is artist conception only. Photos are of a similar home, features and finishes will vary. Expected Completion: November 2026. Homesite 449. *Below-market rate incentives available when financing with preferred lender.*
East from Freeway, R on Evergreen, L on Harvard. Harvard turns into Stubb Rd, L on Gunderson
Dwelling Type: Residential
Subdivision: SMITH CREEK
Year Built: 2025, County: US
East from Freeway, R on Evergreen, L on Harvard. Harvard turns into Stubb Rd, L on Gunderson
Listing is courtesy of Lennar Sales Corp