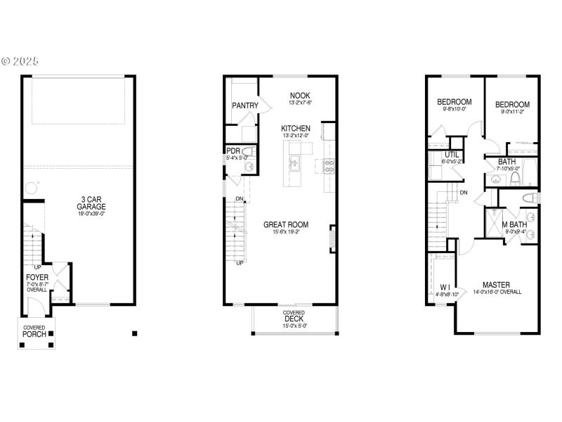
MOVE-IN READY -- Inquire about our Rate Relief and/or Closing Cost Credits $($$,$$$.$$) on every quality-built home we sell. Locally owned, locally operated and locally built with the Chad E. Davis Construction, LLC satisfaction guarantee. Every home carries the builder’s name, a mark of craftsmanship, quality, and elevated standard finishes that buyers instantly notice. We're honored to serve. Open every Friday, Saturday and Sunday from 12pm to 4pm. Introducing our first release of the Langdon Series offering 3 Bedrooms, 2.5 bath and a massive 3 car garage with plenty of room for a shop. Designed for open concept living and includes an expansive covered balcony to lounge and entertain year around. Features high quality standard amenities and design features like shaker style cabinets (stained or painted) with soft close doors and drawers, solid quartz countertops & under mount sinks in Kitchen and bathrooms, stainless steel appliances with gas range, large walk-in pantry, expansive kitchen island and great room fireplace. Spacious owners retreat with dual vanities and an oversized walk-in closet with wood shelving. Electric car charging, AC & window coverings included, LOW HOA DUES at $47.00/mo. Enjoy the peace of mind that comes with high quality new construction, energy efficiency and a 1 year builder warranty. The community offers a fully fenced private Dog Park for our very own furry residents. Centrally located for easy freeway access to Hwy 26, as well as the downtown amenities that has put Forest Grove on the map of top places to live in Oregon.
North on HWY 47, West on David Hill Road, North on Main Street into Subdivision
Dwelling Type: Residential
Subdivision: DAVIS ESTATES
Year Built: 2025, County: US
North on HWY 47, West on David Hill Road, North on Main Street into Subdivision
Listing is courtesy of Keller Williams Sunset Corridor
Sign in to your account to continue