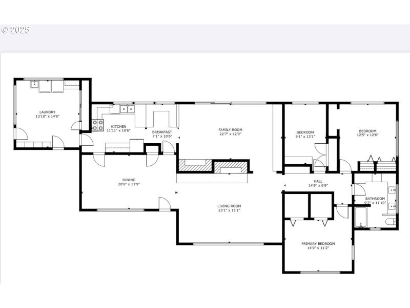
Attention investors! Don't miss out on this cash or rehab loan opportunity. This is a rare mid century modern home on land. It is an exciting opportunity to own a unique property on 2.34 acres in the heart of Oregon’s scenic Willamette Valley. Located on the highly desirable Berlin Road in Lebanon, this spacious 2,239 SF home offers 3 bedrooms, 1 full bath and 1 half bath with a well-designed floor plan that’s full of potential. The inviting living room features a cozy fireplace, perfect for gathering on cool evenings while large windows and a generous layout provide natural light and comfort throughout. Step outside to enjoy expansive valley views from the patio ideal for morning coffee or sunset evenings. The property includes a carport and plenty of room for hobbies, storage, or workspace making it well-suited for a variety of uses—from small-scale farming or gardening to renovation and resale projects. Whether you’re an investor, a flipper or a buyer looking for peaceful acreage to call home. This property is a blank canvas ready for your ideas. Zoned UGA-UGM-10. This parcel benefits from Lebanon’s Urban Growth Management planning ensuring thoughtful land use and preserving value and flexibility for the future. The location is both private and convenient—just minutes to downtown Lebanon, top-rated schools, Cheadle Lake Park, River Park and the South Santiam River offering fishing, kayaking and peaceful outdoor escapes. Outdoor enthusiasts will appreciate being only 60 miles from the Oregon Coast, 100 miles to Bend and the Cascade Mountains for year-round hiking, biking and skiing. Only 40 miles to the Eugene Airport with quick access to flights and urban amenities. Don’t miss this investment-ready gem—a rare combination of acreage, views and location in one of the most sought-after areas of Linn County. Whether you’re dreaming of a rural retreat or a promising real estate venture. No drive bys. Buyer to do due diligence on land use.
Main Street Hwy 20 - East on E Grant St-continue straight turns into Berlin Rd 5.5 miles Home on lef
Dwelling Type: Residential
Subdivision: N/A
Year Built: 1951, County: US
Main Street Hwy 20 - East on E Grant St-continue straight turns into Berlin Rd 5.5 miles Home on lef
Listing is courtesy of Camerelle Real Estate, LLC