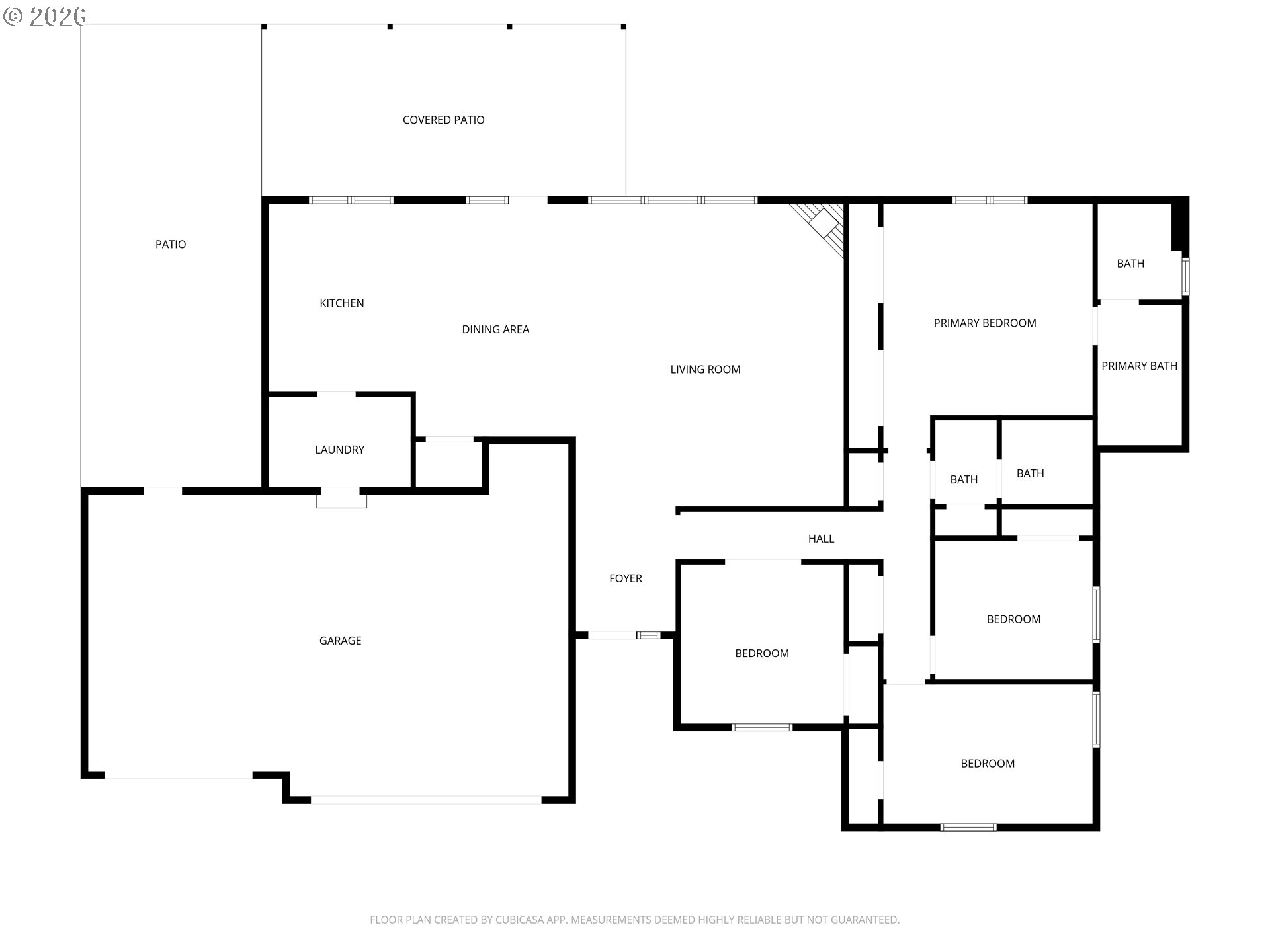
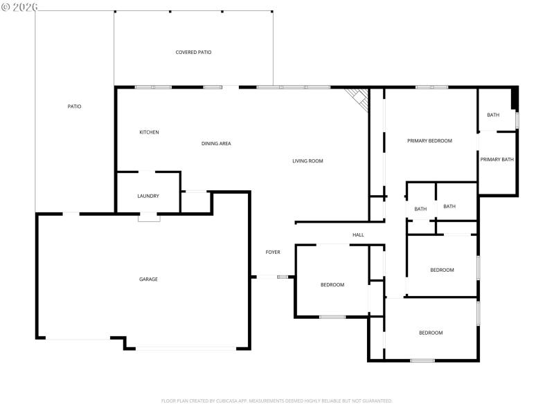
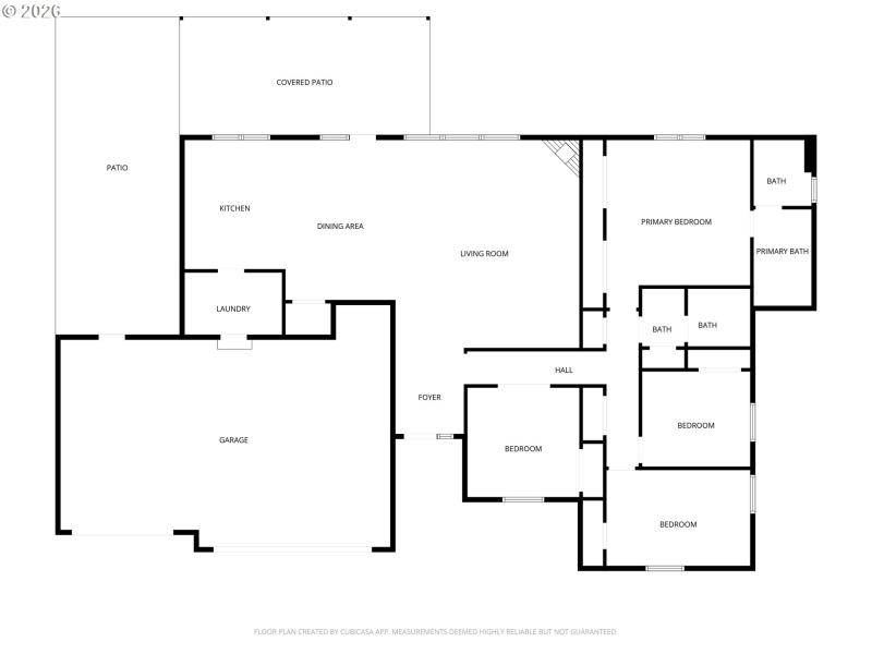
Stunning Custom One-Level Home on 1.04 Acres in Echo Heights! Opportunities like this don’t come up often in one of the area’s most sought-after neighborhoods—especially with this much space right on the edge of town. Inside, you’ll find a thoughtfully designed layout that feels both open and inviting, with high ceilings and oversized windows that bring in great light and frame the surrounding views. The kitchen is a true centerpiece, offering granite countertops, generous prep space, and plenty of storage to keep everything within reach. The spacious primary suite is a standout feature, complete with a large en-suite bathroom, walk-in closet, and a relaxing soaker tub—creating the perfect place to unwind at the end of the day. Step outside to a large back patio with pergola—ideal for quiet mornings or hosting friends. The freshly updated landscaping, complete with new mulch, has the yard ready to pop this spring. The property truly sets itself apart with a separate shop with loft, a 3-car attached garage, and newly added RV hookups on the lower portion of the lot. With over an acre of ground, there’s room for all your toys, future projects, or even that dream shop you’ve been planning. Enjoy the perfect blend of space and convenience—room to spread out, while still being just minutes from local amenities.
Thieslen rd to Bowman rd - left down Joyce Way, house will be on the right.
Dwelling Type: Residential
Subdivision: N/A
Year Built: 2006, County: US
Thieslen rd to Bowman rd - left down Joyce Way, house will be on the right.
Listing is courtesy of Hearthstone Real Estate
Sign in to your account to continue