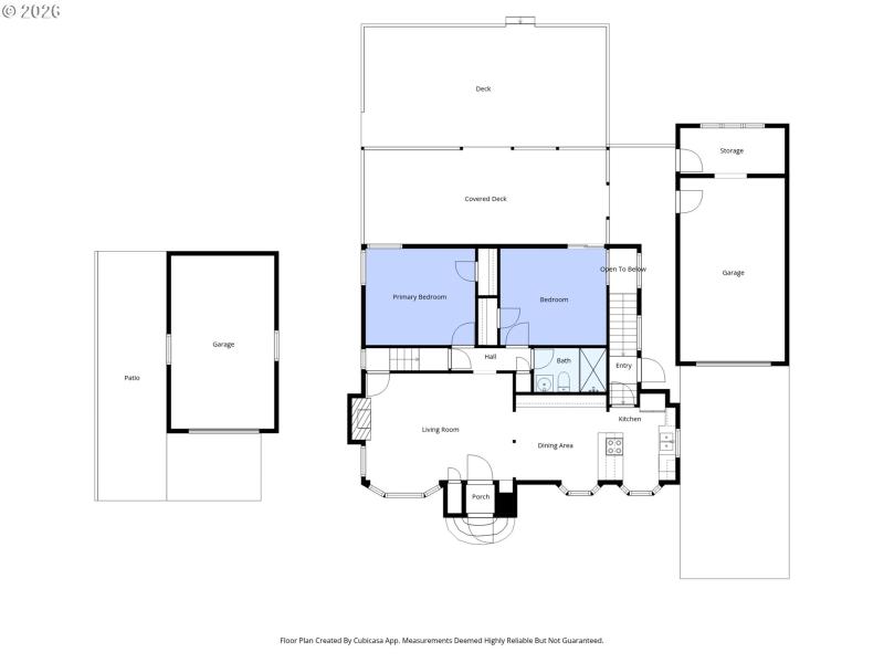
Charming mid-century situated on a rare quarter-acre-plus lot in Portland's Montavilla neighborhood, offering both convenience and potential.Fabulous location provides easy access to local coffee shops, restaurants, shopping venues, and the historic Academy Theater. Approximately 1.5 miles away from Mt. Tabor Park, featuring a dog park, sports courts, playgrounds, trails, and an amphitheater. The nearby East Portland Community Center offers an indoor pool, fitness classes, and various community programs. Inside, the updated kitchen and dining area with newer cabinetry, a built-in buffet, tile flooring, granite countertops, dimmable lighting, and stainless steel appliances opens to the spacious living room featuring NEW LVP floors, fresh paint, newly installed electric fire places, NEW roof and much more. The full basement includes a partial bath, laundry area with sink, family room, and tons of storage options, including a dedicated canning storage space. An additional 3rd level room upstairs great for primary suite or bonus with built-ins and additional attic storage access.The fully fenced backyard presents a versatile space for outdoor activities, complete with an existing garden shed, covered deck with newer hot tub and a fenced garden area. Two garages, located on either side of the house, provide options for parking, workshop space, or additional storage. Public transportation is readily available, with the TriMet 20-Burnside/Stark bus line nearby and easy access to the MAX Green Line, facilitating commutes across the city. .Zoned CM2 (Commercial/Mixed Use 2), this property offers untapped potential for income-generating development, allowing a wide range of commercial and residential uses. Its strategic location and zoning present a valuable opportunity for investment in a high-demand area.
Stark St or Burnside St to 94th Ave
Dwelling Type: Residential
Subdivision: N/A
Year Built: 1945, County: US
Stark St or Burnside St to 94th Ave
Listing is courtesy of The Lachlan Group
Sign in to your account to continue