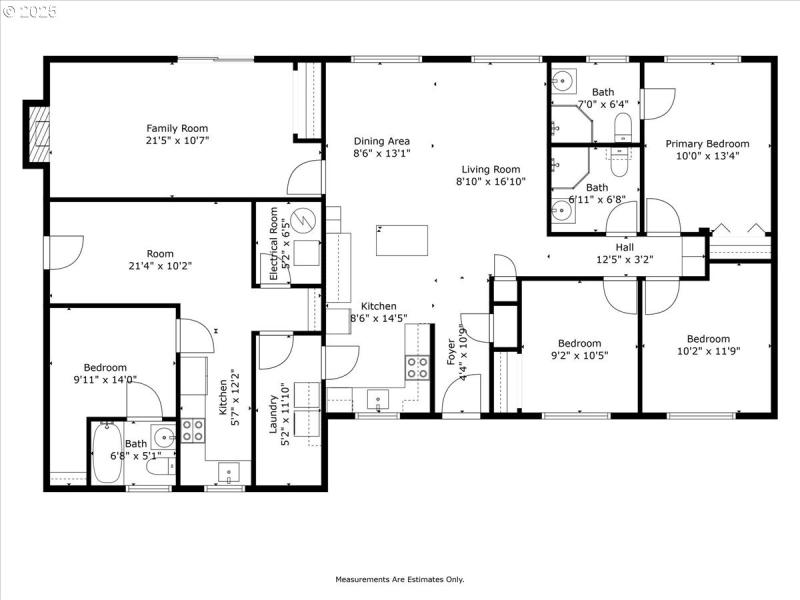
PRICE IMPROVEMENT! Welcome to this delightful 4-bedroom, 3-bathroom ranch-style home nestled in a peaceful cul-de-sac. Built in 1974, this 1,756 sqft residence offers a perfect blend of classic design and modern amenities. The heart of the home features a cozy wood-burning fireplace, ideal for those chilly evenings. The kitchen, updated in 2022, is equipped with a free-standing range, quartz countertops, and stainless steel appliances, making it a chef's delight.One of the standout features of this property is the permitted converted garage to an apartment. This additional space offers privacy with its own bedroom and bathroom, and kitchen which is perfect for guests or potential rental income.Step outside to the backyard, where you'll find a covered patio, perfect for entertaining or simply enjoying a quiet moment. The spacious yard provides ample room for gardening or outdoor activities. Recent updates include fiber cement lap siding, vinyl windows, and a new water heater installed in 2022, ensuring comfort and efficiency. This home is offered at a great value for buyers to make cosmetic updates and increase its value.
State St to 47th Ave SE; South to Horseshoe Ct SE
Dwelling Type: Residential
Subdivision: N/A
Year Built: 1974, County: US
State St to 47th Ave SE; South to Horseshoe Ct SE
Listing is courtesy of Keller Williams Realty Portland Elite