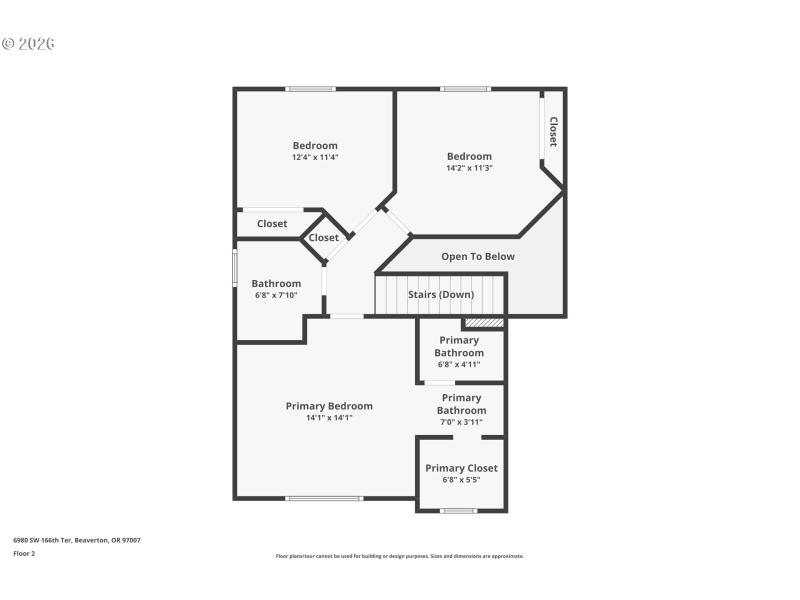
OFFER(S) RECEIVED. OFFER DEADLINE SET FOR SATURDAY, APRIL 11th @ 5:00pm. Open House April 11th 12:00-2:00. This beautifully updated traditional home in Beaverton offers a perfect blend of modern style and functional living, situated on a quiet cul-de-sac with serene valley views. The interior features a stunningly remodeled kitchen with bold blue cabinetry, sleek quartz countertops, and stainless steel appliances, complemented by a charming breakfast nook with built-in bay window seating. Spanning 1,570 square feet, the home includes a vaulted living area, a cozy family room with a fireplace, and a spacious primary suite complete with a walk-in closet and private bath. Set on a generous 0.21-acre lot, the property provides a large, fenced backyard ideal for outdoor activities, all within the desirable Cooper Mountain Elementary and Aloha High School boundaries. All systems and surfaces updated since 2021.
From SW Hart (or SW Bany), N on SW 166th Terrace
Dwelling Type: Residential
Subdivision: WEST BEAVERTON
Year Built: 1988, County: US
From SW Hart (or SW Bany), N on SW 166th Terrace
Listing is courtesy of Premiere Property Group, LLC
Sign in to your account to continue