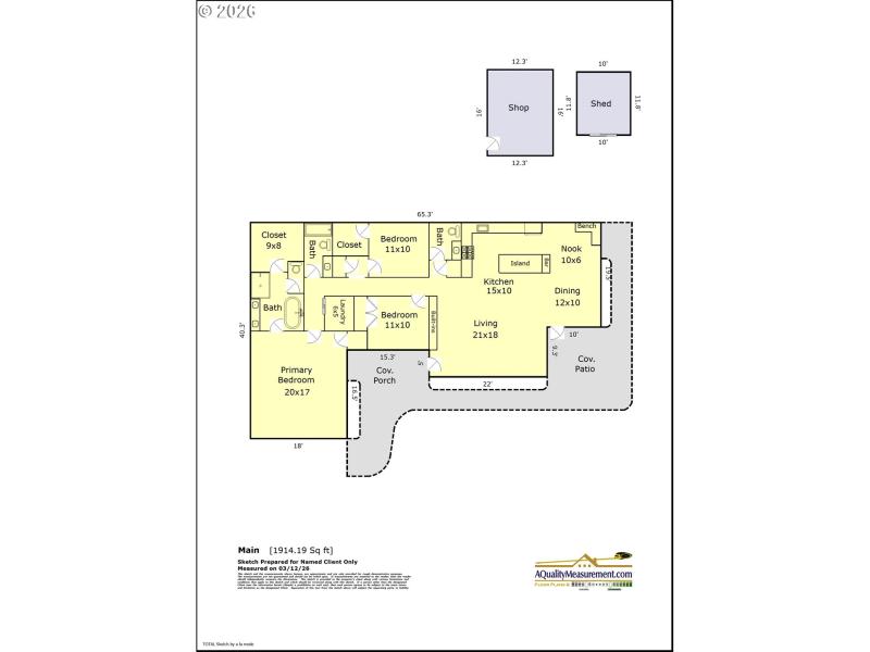
What an amazing property. Hard to find one level home in a great part of Milwaukie with quality you wont find anywhere else in this price range. This home has been completely remodeled in 2025 from the ground up. Only thing original is the foundation and studs. Features a popular open floor plan concept that makes everything light and bright. Gorgeous kitchen with custom cabinetry, upper end appliance package and eating bar. There is a cute dining area for the kitchen and then connects into a bigger dining room. The kitchen, eating areas and great room lay out perfectly and are wonderful for entertaining. Vaulted primary suite with with an incredible bathroom and walk in closet with custom closet organizers. Hard to find 2 1/2 baths, most one level homes have 2 bathrooms. 2nd & 3rd bd have their own full bathroom and then a partial for guests. Utility room with washer and dryer. Home is completely move in ready, has all appliances and window coverings. Oversized lot with brand new concrete and new landscape with sprinklers. Beautiful covered patio with stamped concrete, canned lights and tongue and groove ceiling. Multiple raised beds for the garden enthusiast. Big shop/storage with concrete floor and it's own electrical panel that provides power to this structure and another shed on the property. This is an absolute "10" and must see.
Lake Rd, North on 34th, Left on Wister, Left on 33rd
Dwelling Type: Residential
Subdivision: N/A
Year Built: 2025, County: US
Lake Rd, North on 34th, Left on Wister, Left on 33rd
Listing is courtesy of Harcourts Real Estate Network Group
Sign in to your account to continue