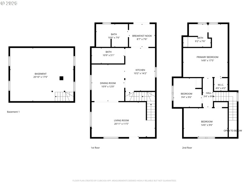
Walk to downtown and restaurants.Welcome to this charming and well cared for home! Easements on both sides allow for access to shop and off street parking. It has generous room sizes and is larger on the inside than exterior appears. The primary bedroom suite has a walk in closet and attached bathroom. This home has beautiful original woodwork along with; newer gas furnace and AC, new electrical box and all new home wiring, vinyl windows, updated water and sewer lines, renovated tile bathrooms, laundry room moved to the main floor, wood plank floors underneath the carpet, basement for storage or project area, and much more! This property is zoned C-3, it may continue as a residence or could also be used as a business following the City of Pendleton zoning guide lines.
SE Court Ave to SE 7th St.
Dwelling Type: Residential
Subdivision: N/A
Year Built: 1916, County: US
SE Court Ave to SE 7th St.
Listing is courtesy of eXp Realty, LLC
Sign in to your account to continue