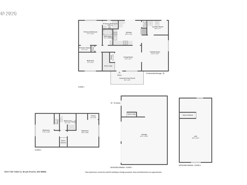
Welcome to a beautifully maintained home offering the perfect blend of comfort, style, and convenience. Nestled on a quiet cul-de-sac, this residence provides peaceful living while being just minutes from shopping, dining, parks, and major commuter routes. Step inside to discover an open-concept layout, spacious living areas, and thoughtful updates throughout. The well-appointed kitchen features ample cabinetry and generous counter space — perfect for both everyday living and entertaining guests. Range, Refrigerator, washer/dryer included.
GPS
Dwelling Type: Residential
Subdivision: N/A
Year Built: 1985, County: US
GPS
Listing is courtesy of Redfin
Sign in to your account to continue