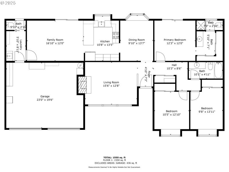
Tucked away on a quiet street in Boring, this well-cared-for one-level home sits on 1.85 flat, usable acres. This property offers the space, privacy, and flexibility you've been looking for. Inside, you'll find a bright and functional floor plan, comfortable living spaces, and a warm, welcoming atmosphere that makes you feel right at home. Step outside and enjoy your own slice of country living - mature landscape, including fruit trees, established berries, and grapes. Plenty of open space, room to garden, host, or simply relax in peace. The 28x30 detached shop opens the door to endless possibilities: storage, workspace, hobby area, or a place to keep your toys and tools. Whether you're dreaming of a little extra land, space to spread out, or a quiet place to settle down, this property brings it all together. All of this is just minutes from Sandy, Gresham and easy access to Mt. Hood adventures. Don't miss the opportunity to make this amazing property yours!
282nd Drive to SE Andy Street, home is on the left down gravel driveway.
Dwelling Type: Residential
Subdivision: N/A
Year Built: 1987, County: US
282nd Drive to SE Andy Street, home is on the left down gravel driveway.
Listing is courtesy of Premiere Property Group, LLC