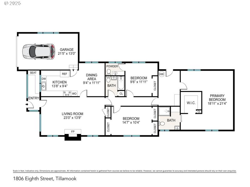
Great home in Tillamook, with great fenced yard, and enclosed front porch! You can walk to shopping, library, schools or YMCA from this cute 3 bedroom, 2.5 bath home, all on one level. Hardwood floors, cozy fireplace insert, eat in kitchen, all on one level. A roomy one car garage, nice deck out back and even a barbeque area! This great starter home or rental investment is ready for your personal touch! Schedule a showing today!
From 101 south in Tillamook, right on 8th, home on Right. See signs.
Dwelling Type: Residential
Subdivision: N/A
Year Built: 1964, County: US
From 101 south in Tillamook, right on 8th, home on Right. See signs.
Listing is courtesy of Rob Trost Real Estate LLC