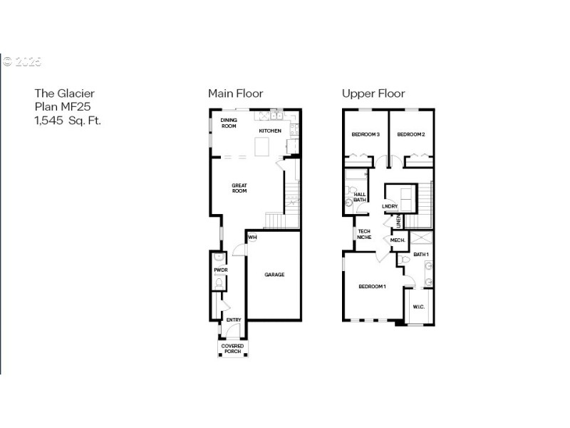
New construction home in Gresham with spacious backyard! The Vineyards at Blue Pearl offers serene living in Gresham, with convenient access to the highway. Discover nearby shopping centers and scenic parks, providing the perfect balance of beautiful views and outdoor adventure. This two-story Glacier townhome features 3 bedrooms, 2.5 bathrooms, an attached garage, and offers 1,545 square feet of space with extended flooring. Past the entryway, the space opens into a seamless and sparkling great room that flows into the kitchen and dining area. Foodies will rejoice in the chef-inspired kitchen that features solid quartz countertops, a spacious pantry, an island, and stainless-steel appliances. The upstairs has a lovely tech niche for added space, and a laundry room for added convenience. The spacious primary bedroom features a spacious walk-in closet and double vanity. The second and third bedroom are located by the secondary bathroom, giving you the option to create a home gym or an at-home office space. Receive closing cost credit with use of builder’s preferred lender, reach out for more details. Photos are representative of plan only and finishes may vary as built. Come visit The Vineyards at Blue Pearl and claim your Glacier today! Sales office hours are Saturday to Wednesday 10:00am – 5:30pm.
Just South of Lusted Rd and SE 282nd Ave, East on SE 15th St
Dwelling Type: Residential
Subdivision: N/A
Year Built: 2025, County: US
Just South of Lusted Rd and SE 282nd Ave, East on SE 15th St
Listing is courtesy of D. R. Horton, Inc Portland