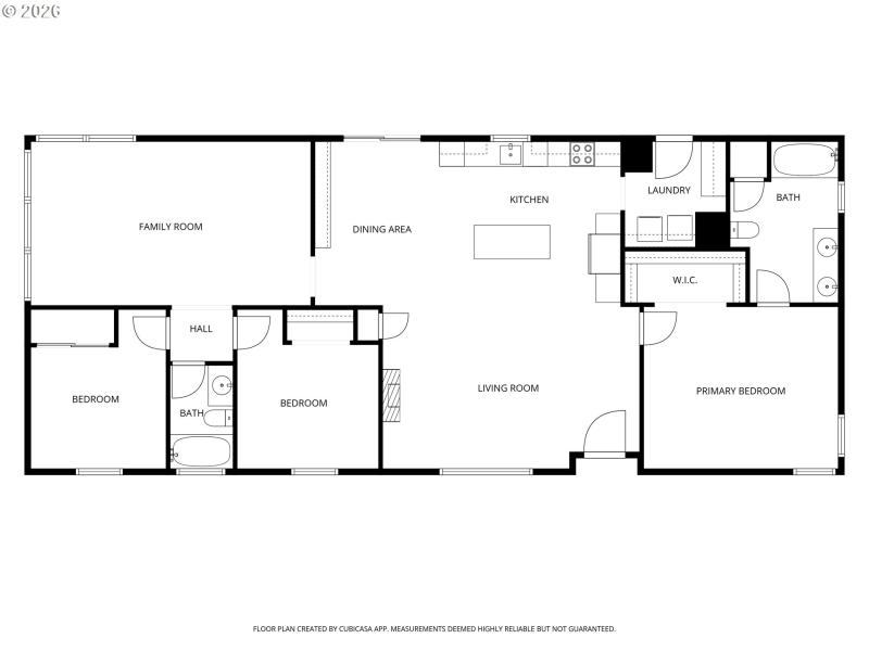
Enjoy peaceful country living with beautiful views overlooking the city of Creswell from this private 5-acre hilltop property, just about 20 minutes from Eugene. Tucked at the end of a cul de sac and surrounded by custom homes and long-term neighbors, this property offers space, privacy, and a relaxed lifestyle.The home has been fully renovated and is truly move-in ready. Inside you’ll find a welcoming kitchen with a large island, an electric fireplace, and a comfortable floor plan with a spacious family room that’s great for gatherings. Updates include new LVP flooring throughout, fresh exterior paint, and brand new roofs on both the home and detached garage replaced in November 2025. Step outside to enjoy the covered back deck where you can take in the views of Creswell, especially in the evening as the lights come on across town. The property is fully fenced and cross fenced and includes a chicken coop, a large enclosed and irrigated garden area, and plenty of space to enjoy the outdoors. There are also RV hookups with a dump station for guests or extra flexibility. Additional updates completed by the seller include a new osmosis system and a new pressure tank. With five acres, beautiful views, and thoughtful improvements throughout, this property offers a peaceful setting while still being a short drive to Eugene.
Camas Swale to Mickelson to end of culdesac
Dwelling Type: Residential
Subdivision: N/A
Year Built: 1998, County: US
Camas Swale to Mickelson to end of culdesac
Listing is courtesy of eXp Realty LLC
Sign in to your account to continue