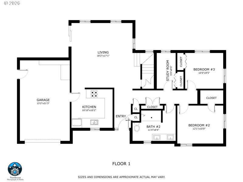
OPEN HOUSE 4/18 10am-12pm. Unique dual-living opportunity just minutes from Coburg! Located in Paiute Estates, this beautifully renovated home offers flexibility for multi-generational living or rental income. Originally built in 1970 with a second-story addition in the early 1990s, this 1,932 sq. ft. property has been fully updated throughout. The home features 4 bedrooms and 2 bathrooms, which includes a fully self-contained upper-level apartment complete with its own kitchen, living and dining areas, and separate heating and cooling system. The main level showcases hardwood flooring with LVP in the kitchen and bathroom. The kitchen is thoughtfully designed with quartz countertops, black fixtures, electric range, dishwasher, refrigerator, and a stylish pot rack. Additional features include dual HVAC systems, ceiling fans in all bedrooms, walk-in closets, a wide hallway, under-stair storage, and abundant storage throughout. A private office adds flexibility for work or hobbies. The bathroom is tastefully updated with shiplap accents, dual sinks, a walk-in shower, quartz counters, and tile finishes. Skylights bring in natural light, and the home also benefits from a newer roof (2023). The upper-level apartment offers 2 bedrooms and 1 bathroom, vaulted ceilings, a private balcony, and warm, wood-inspired finishes creating a comfortable and inviting separate living space. Outside, enjoy a spacious backyard with a deck, dedicated garden area, and three sheds/outbuildings. An oversized single-car garage provides additional storage, laundry space, and includes a brand-new electrical panel. A rare chance to own a versatile, move-in-ready dual-living property in a desirable Coburg-area location!
N Coburg Rd to Paiute Ln
Dwelling Type: Residential
Subdivision: N/A
Year Built: 1970, County: US
N Coburg Rd to Paiute Ln
Listing is courtesy of Keller Williams Realty Eugene and Springfield
Sign in to your account to continue