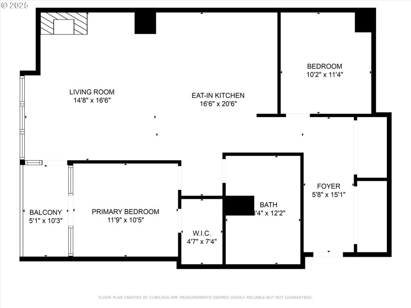
Experience refined waterfront living at Kirkland Tower, one of the Vancouver Waterfront's premier luxury addresses — now offered at a compelling new price. Residence 700 is a highly sought-after one-bedroom plus den home that lives like a two-bedroom, located on the highest floor available for this floor plan and offering elevated privacy along with sweeping west-facing city and sunset views.Expansive floor-to-ceiling windows flood the home with natural light and frame stunning evening sunsets. The open, eat-in kitchen is designed for both everyday living and entertaining, featuring premium Miele appliances, quartz countertops, sleek modern cabinetry, and a vented range hood that flows seamlessly into the living area. Wide-plank European engineered hardwood floors, independent HVAC, and thoughtful modern finishes elevate the space throughout.The primary suite offers a serene retreat with a spa-inspired bath and generous closet space. The versatile den provides flexibility for a guest room, home office, or media space, adapting easily to your lifestyle.Residents enjoy exclusive access to a rooftop sky lounge and terrace with fire features, state-of-the-art fitness center, resident clubroom, concierge services, and secure package room — all with direct interior access to Hotel Indigo. On-site amenities include Amelie Med Spa, El Gaucho, The Witness Tree rooftop bar and lounge, 13 Coins, 13 Coins Coffee House, and Evoke Winery, plus room service and valet options.A rare and transferable property tax abatement remains in place through 2031 — a meaningful financial advantage that adds thousands in annual savings to an already exceptional value proposition. Just steps from Vancouver Waterfront Park, acclaimed dining, and boutique shopping, Residence 700 delivers effortless luxury living at its finest.
Esther St and Waterfront Way
Dwelling Type: Residential
Subdivision: KIRKLAND TOWER/WATERFRONT
Year Built: 2019, County: US
Esther St and Waterfront Way
Listing is courtesy of Cascade Hasson Sotheby's International Realty
Sign in to your account to continue