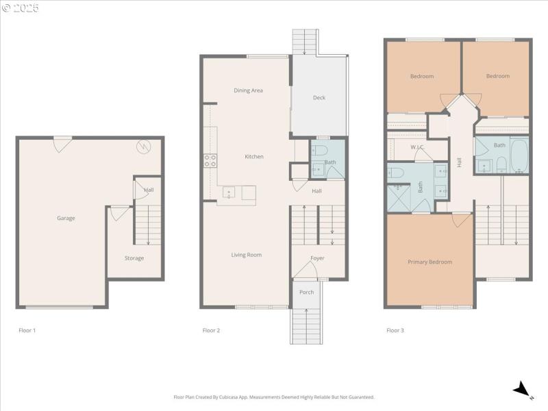
Introducing a meticulously crafted 3-bedroom, 2.5-bath attached residence, thoughtfully designed to offer a harmonious blend of modern elegance and functional living. The home features an open-concept floor plan enhanced by engineered hardwood flooring throughout the entire home. The gourmet kitchen is appointed with exquisite quartz countertops and ample cabinetry, providing both beauty and practicality. The primary bedroom boasts a private en suite bathroom, complete with refined finishes and quartz countertops, offering a serene retreat. All bathrooms are finished with designer tilework and contemporary fixtures. The covered back deck extends the living space outdoors, ideal for relaxation or entertaining in all seasons. Additional conveniences include an attached one-car garage, providing parking and storage. This residence combines design, energy-efficient construction, and low-maintenance features, making it an exceptional opportunity!
S on SW 35th Ave E on SW Ridge Dr Left on SW 34th PL Home is on Right
Dwelling Type: Residential
Subdivision: N/A
Year Built: 2025, County: US
S on SW 35th Ave E on SW Ridge Dr Left on SW 34th PL Home is on Right
Listing is courtesy of RE/MAX Equity Group