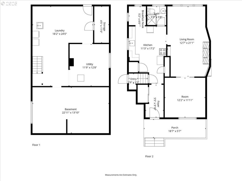
Discover a rare opportunity in the heart of Portland’s iconic Belmont District! Built in 1903, this classic duplex features two 1-bedroom, 1-bath units showcasing timeless character—hardwood floors, high ceilings, fireplaces, original detailing, and a welcoming covered front porch. The large unfinished basement with exterior entrance provides shared laundry, private storage, and potential for expansion for a third unit. RM2 zoning offers additional development options for future value. Located along a bus line, one can leave the car at home or take advantage of near-perfect Walk & Bike Scores with some of Portland’s best cafés, restaurants, shops, schools and parks just steps away. Whether you’re an investor or an owner-occupant seeking income potential, this Belmont gem delivers historic charm, flexibility, and unbeatable location! 
 Between SE 37th & SE 38th on SE Belmont St 
 
                                                        Dwelling Type: MultiFamily 
                            Subdivision: SUNNYSIDE / HAWTHORNE 
                            Year Built: 1903, County: US 
                            Between SE 37th & SE 38th on SE Belmont St
                        
Listing is courtesy of Keller Williams Realty Portland Premiere