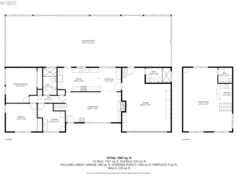
Offered at $849,900 this exquisite contractor-owned luxury home has been thoughtfully reimagined for elevated Pacific Northwest living, high-end entertaining and serious culinary performance. At the center of the home is a professional chef’s kitchen featuring a $20,000 48-inch natural gas double oven with flame-broiled steel grates, true commercial cooking capacity, custom hickory cabinetry, and granite countertops that flow seamlessly into both formal and casual living spaces. Premium, long-life exterior systems include a standing seam metal roof and siding, aluminum cladding, real stone accents, and a double-pane acrylic insulated roof system. Inside, the home showcases Sierra Pacific wood windows, knotty alder trim, solid interior doors, solid oak hardwood floors, sun tunnels, fully remodeled bathrooms with in-wall medicine cabinets, and the #1-rated Amway water filtration system. Mechanical and efficiency upgrades include a 100-gallon gas water heater, energy-efficient commercial-grade gas heat pump with ductless units, a private well with automatic irrigation, and a $16,000 daylight frosted-glass aluminum garage door, plus top-rated washer and dryer, extensive garage cabinetry with refrigerator hookup and a Mascott security front door paired with insulated fiberglass frosted-glass entry doors. Resort-style amenities elevate everyday living with a spectacular 1,500-square-foot double-pane insulated sunroom featuring an acrylic daylight roof, five 72-inch ceiling fans, built-in speakers, and a dedicated 24' x 20' gym with professional rubber flooring. Additional highlights include a saltwater jacuzzi, 12' x 8' cedar outdoor sauna, custom indoor stone fireplace with built-in bookcase, two 6-foot linear electric fireplaces in the rec room, dual big-screen TVs and an outdoor stone wood-burning fireplace with optional gas hookup. Energy-efficient luxury home is perfect for buyers relocating to the Northwest. Open Sat & Sun 10am-1pm
SE 164th N to SE 15th E to 188th Ave
Dwelling Type: Residential
Subdivision: N/A
Year Built: 1966, County: US
SE 164th N to SE 15th E to 188th Ave
Listing is courtesy of eXp Realty LLC
Sign in to your account to continue