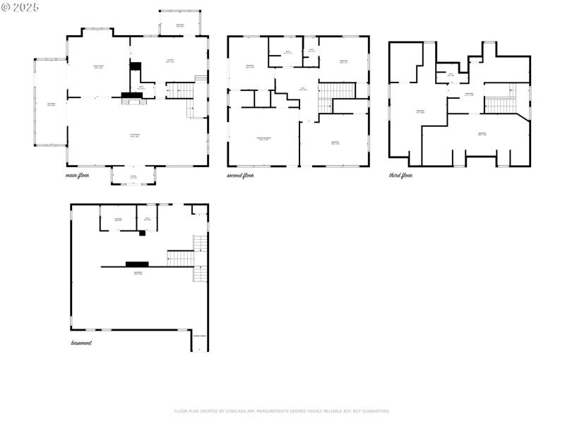
Presenting 1343 Jerome Avenue, a stunning 1916 Colonial Revival masterpiece designed by renowned architect John E. Wicks. Six bedrooms and four baths spread across three generous floors, plus full basement and connected garage. Original inlaid hardwood floors gleam throughout, while coffered plaster ceilings and picture rails showcase the era's craftsmanship. Two… yes… two solariums capture southern light year-round. A grand wood-burning fireplace anchors the living space, complemented by glass pocket doors, leaded glass windows, and built-in cabinetry in the formal dining room. Three bedrooms open to riverview balconies—imagine watching the ships roll by on the Columbia River. Period details shine: original light fixtures, art deco hardware & radiant heaters. Tucked up on a quiet residential street amongst other beautifully restored historic homes, yet just blocks from Astoria's vibrant downtown shops and riverwalk.
Just in from the corner of 14th Street on Jerome.
Dwelling Type: Residential
Subdivision: Shively
Year Built: 1916, County: US
Just in from the corner of 14th Street on Jerome.
Listing is courtesy of Cascade Hasson Sotheby's International Realty