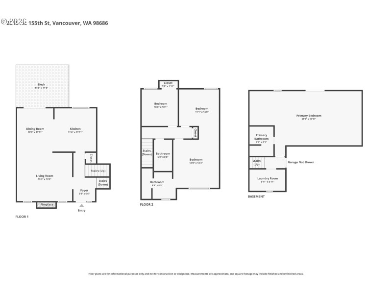
**2 offers received. Offers due by Sunday 3/8 at 4:00. Located in desirable Mt. Vista, this lovely tri-level home sits in a beautiful neighborhood and offers a versatile, functional floor plan with 3 bedrooms and 2.5 baths. Vaulted ceilings and abundant natural light enhance the main living area, highlighted by a striking rock fireplace and stainless steel appliances in the kitchen. Upstairs, the spacious primary suite was thoughtfully expanded by removing a wall between two original bedrooms to create an oversized retreat with an en suite bath ready for your personal finishing touches, while an additional bedroom on this level provides comfortable living space with the potential to convert back to three bedrooms if desired. The lower level includes a spacious bonus room with a cozy pellet stove, a ½ bath, and french doors leading to the outdoor patio—creating the perfect setting for entertaining or relaxing. Currently used as a bedroom, this flexible space could easily serve as a media room, office, or playroom, and a dedicated laundry room is also located downstairs. Situated on a large lot with room to enjoy the outdoors, this home offers comfort, character, and flexibility in one of Vancouver’s most sought-after communities.
NE 20th Ave, East on 155th St, home is on the right.
Dwelling Type: Residential
Subdivision: N/A
Year Built: 1979, County: US
NE 20th Ave, East on 155th St, home is on the right.
Listing is courtesy of Opt
Sign in to your account to continue