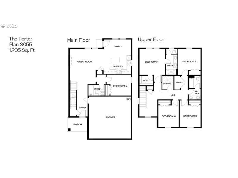
New construction home in gorgeous Woodburn, Oregon! Lowrie Estates, a brand-new community by D.R. Horton is located conveniently nearby Interstate 5, mixing calm suburban living in with swift access to nearby cities like Portland and Salem for easy commuting. This community is just minutes from the Woodburn Premium Outlets, where you can discover a variety of remarkable dining and shopping possibilities. This Porter two-story floor plan has 5 bedrooms, 3 bathrooms, with a full bedroom and bathroom on the main floor that is perfect for out-of-town guests. The great room has designer features with a fireplace and a floor-to-ceiling painted accent wall along with hardwood laminate flooring throughout the main. The lavish kitchen has stunning shaker cabinetry, quartz countertops with solid surface backsplash, and stainless-steel appliances like a gas range/oven and microwave with vent hood. The spacious primary bedroom has a walk-in closet, and an en suite bathroom with a double vanity. The hall bathroom on the second floor boasts a double vanity for extra comfort. Receive a closing cost credit with use of builder’s preferred lender, reach out for more details. Photos are representative of plan only and finishes may vary as built. Come visit Lowrie Estates and claim your Porter today!
Text/Call 503-330-0384 for new construction address directions
Dwelling Type: Residential
Subdivision: LOWRIE ESTATES
Year Built: 2025, County: US
Text/Call 503-330-0384 for new construction address directions
Listing is courtesy of D. R. Horton, Inc Portland