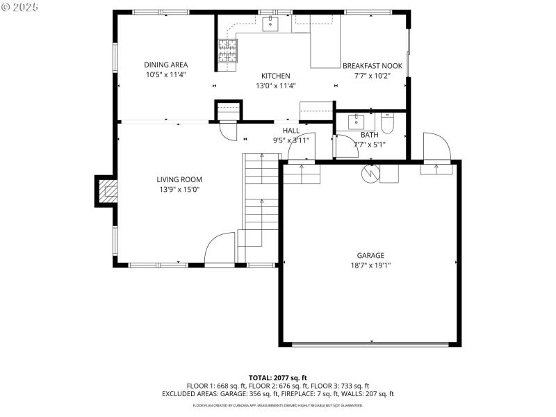
6244 Frost Lane. "Large, bright, and functional" describes homes of this era and this home perfectly. Located in the Lake Grove neighborhood of Lake Oswego, in a little nook known as Summer Woods, this upgraded traditional sits on a nice sized lot that includes a covered front porch, two decks, and an attached 2 car garage. The best floor plan, fresh modern improvements, and loads of natural light - it just feels good when you walk in. Bike score of 72 -farmer's market, boutiques, grocery stores, several coffee shops and restaurants, parks, post office and schools are all just a pedal away. Highlights: new- roof, high-efficiency furnace, garage door, flooring, cabinets, surfaces, tile, paint, and lighting. This is the home, your place to settle in and stay.
Washington Ct to Wight to Summer Woods to Kara to Frost Lane
Dwelling Type: Residential
Subdivision: Summer Woods
Year Built: 1995, County: US
Washington Ct to Wight to Summer Woods to Kara to Frost Lane
Listing is courtesy of Windermere Heritage