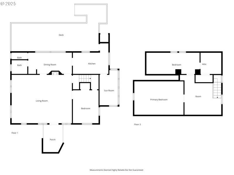
If you’re looking for room to spread out, this is the perfect Mt. Hood retreat! Built in 1925, this charming ski cabin sits on leased land within the Mt. Hood National Forest, just 15 minutes to the slopes. Enjoy a prime location on a plowed road and easy access to Still Creek plus a walking bridge that leads to Rhododendron’s coffee shops and restaurants. Inside, the cabin blends classic character with cozy comfort: a spacious living room centers around a beautiful river-rock fireplace with a wood stove insert, surrounded by original wide board wood ceilings and walls with paned wood windows. The main level includes one bedroom, dining room with forest views, full kitchen, and a bathroom featuring a relaxing claw-foot tub. Upstairs, a huge sleeping area easily accommodates six or more, plus a bonus loft. Step out the back door to a large deck perfect for summer barbecues or star-filled evenings. Features include Marmoleum flooring, forced-air propane heat, and water from the award-winning Rhododendron Water System. There’s also a laundry area with easy access under the cabin. It comes furnished too. Outdoor lovers will appreciate nearby Still Creek Road for hiking and biking to Trillium Lake or riding the bike trails from Government Camp down to Rhododendron. Just an hour from Portland, your year round basecamp getaway is ready!
Still Creek Road veer left and cross river and cabin is on left side of road at LOT 29
Dwelling Type: Residential
Subdivision: MT HOOD NATIONAL FOREST
Year Built: 1925, County: US
Still Creek Road veer left and cross river and cabin is on left side of road at LOT 29
Listing is courtesy of Keller Williams PDX Central