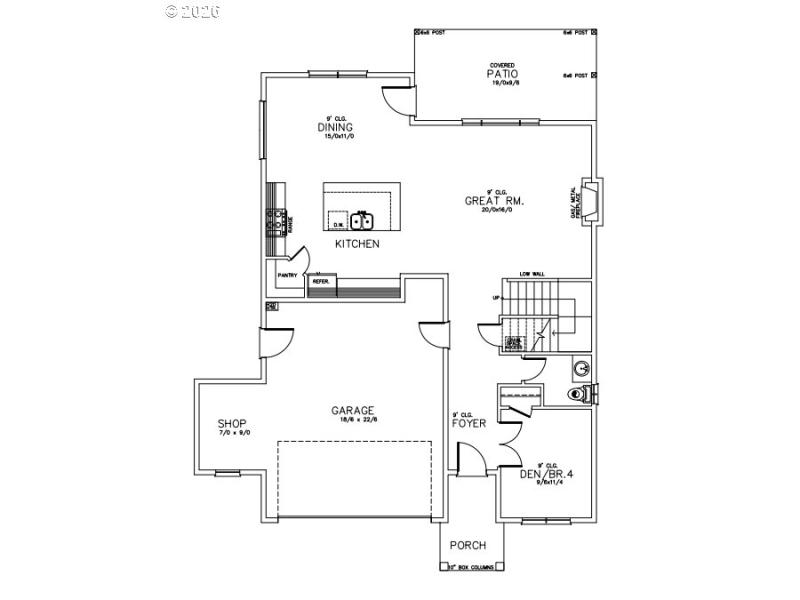
See a sales rep about our current rate buydown promo! This Farmhouse features 3 bedrooms up, with a den/4th bedroom on the main floor. Enjoy the spacious great room and gourmet kitchen with a large walk-in pantry and stainless-steel Whirlpool appliances. Enjoy the serenity the green tract behind this property has to offer on your huge covered rear patio. The primary suite features a soaking tub, full tile shower, dual vanities, and 2 large walk-in closets. Tour this plan today!
SW Vista Ridge Lane X SW Trillium Ct
Dwelling Type: Residential
Subdivision: FROG POND VISTA
Year Built: 2025, County: US
SW Vista Ridge Lane X SW Trillium Ct
Listing is courtesy of Stone Bridge Realty, Inc
Sign in to your account to continue