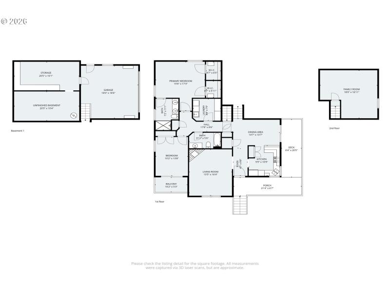
First time on the market, this custom-built retreat offers your own private slice of the Oregon Coast on over 6 acres, surrounded by forest, dunes, and a tranquil private pond. A rare opportunity to own a truly serene and secluded setting while still enjoying modern comforts.Thoughtfully designed and beautifully upgraded, the home features rich hickory wood flooring, upscale carpet in the bedrooms, granite countertops throughout, quality cabinetry, and soaring high and vaulted ceilings that enhance the natural light and sense of space. The inviting living room showcases vaulted ceilings and a cozy fireplace, creating a warm and welcoming atmosphere.The kitchen is both functional and refined, complete with granite counters, stainless steel appliances, a corner double porcelain sink, and a spacious pantry. The primary suite offers two walk-in closets and a private bath with tile flooring and a walk-in shower. A second bedroom features a glass slider to the deck, while the split-level upper family room provides flexible space ideal for guests, hobbies, or additional living.Outdoor living is just as impressive, with a large wraparound covered deck accessible from the bedroom and dining area, complete with built-in lighting and surround sound—perfect for entertaining or enjoying peaceful coastal sunsets. The property also includes ample storage, RV parking with hookups and electric, and a charming outbuilding with built-ins accessed by a wood ramp—ideal as a playhouse, studio, or creative space.With permanent internet service already connected and being sold furnished, this is a true turnkey Oregon Coast dream—offering privacy, beauty, and lifestyle all in one exceptional property.
Hwy 101 - Driveway on West side approx 1/2 mile North of C&M Stables
Dwelling Type: Residential
Subdivision: N/A
Year Built: 2011, County: US
Hwy 101 - Driveway on West side approx 1/2 mile North of C&M Stables
Listing is courtesy of Windermere Real Estate Lane County
Sign in to your account to continue