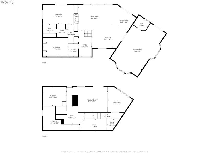
OPEN HOUSE 10AM-2PM SUN. Welcome to your dream retreat! This beautifully maintained home offers over 3,200 square feet of living space on a full acre, perfectly combining comfort, style, and privacy. Love to entertain? The open kitchen flows effortlessly into the family room, creating the heart of the home where friends and loved ones naturally gather. Just off the kitchen, the bonus room invites endless possibilities—whether it’s a movie night, a game of pool, or simply a cozy evening to unwind.The main level also features two additional bedrooms, two full baths, and a dedicated office. Step outside to a spacious deck and patio designed for connection and relaxation. Imagine hosting summer barbecues, celebrating with friends, or savoring peaceful evenings surrounded by nature. For those who dream bigger, the large detached shop opens the door to countless possibilities. With power and space to match your imagination, it’s perfect for hobbies, projects, RV/boat storage, or even building out the ultimate workshop.This home’s generous layout, thoughtful updates, and move-in ready condition make it more than just a place to live—it delivers a lifestyle. Washington Square Mall and other amenities are only a short drive away, giving you the perfect balance of peaceful living with convenient access when you need it.
from Farmington , south on Sw 185th Ave, leads in to SW Gasner, right on Sw 191st Ave
Dwelling Type: Residential
Subdivision: N/A
Year Built: 1971, County: US
from Farmington , south on Sw 185th Ave, leads in to SW Gasner, right on Sw 191st Ave
Listing is courtesy of Premiere Property Group, LLC