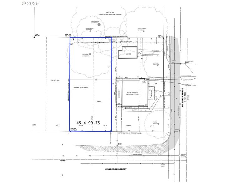
Discover this exceptional vacant level and usable lot, zoned RM1 —perfect for a variety of residential development options! Spanning 45’ x 99.75’, this 4,488 sq. ft. lot is ready for your vision. Whether you're planning townhomes, duplexes, or 5+ units, this location offers so much potential. Enjoy a desirable location with easy access to public transit, local parks, shopping, and dining. Utilities are available at the street, streamlining the building process. Don’t miss out on this fantastic opportunity to develop and put your stamp on Portlands landscape! Buyer to do due diligence on zoning and development possibilities.
Glisan to NE 92nd to NE Oregon.
Dwelling Type: Land
Subdivision: N/A
Year Built: N/A, County: US
Glisan to NE 92nd to NE Oregon.
Listing is courtesy of Keller Williams Realty Portland Premiere
Sign in to your account to continue