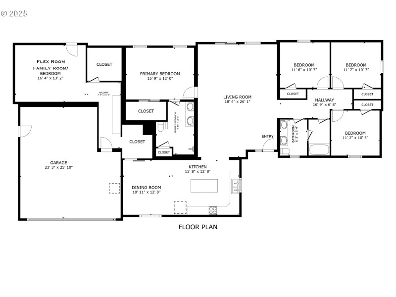
Spacious retreat on 1.21 acres in North Albany! 2498sf Manufactured Home w/ large shop (24x40) & partially constructed Log Cabin ADU w/ its own new septic. Home updates include new furnace, water heater, fridge, range, dishwasher (2020-2024). The layout provides flexibility for a 5th bedroom, office, family room, or possible dual-living options—tailored to your needs. The fully covered back patio w/ spa creates the perfect space for year-round relaxation & entertaining. Rural living w/ city convenience.
Springhill/NW North Albany
Dwelling Type: Residential
Subdivision: N/A
Year Built: 1996, County: US
Springhill/NW North Albany
Listing is courtesy of HomeSmart Realty Group